Перейти к содержимому
Войти

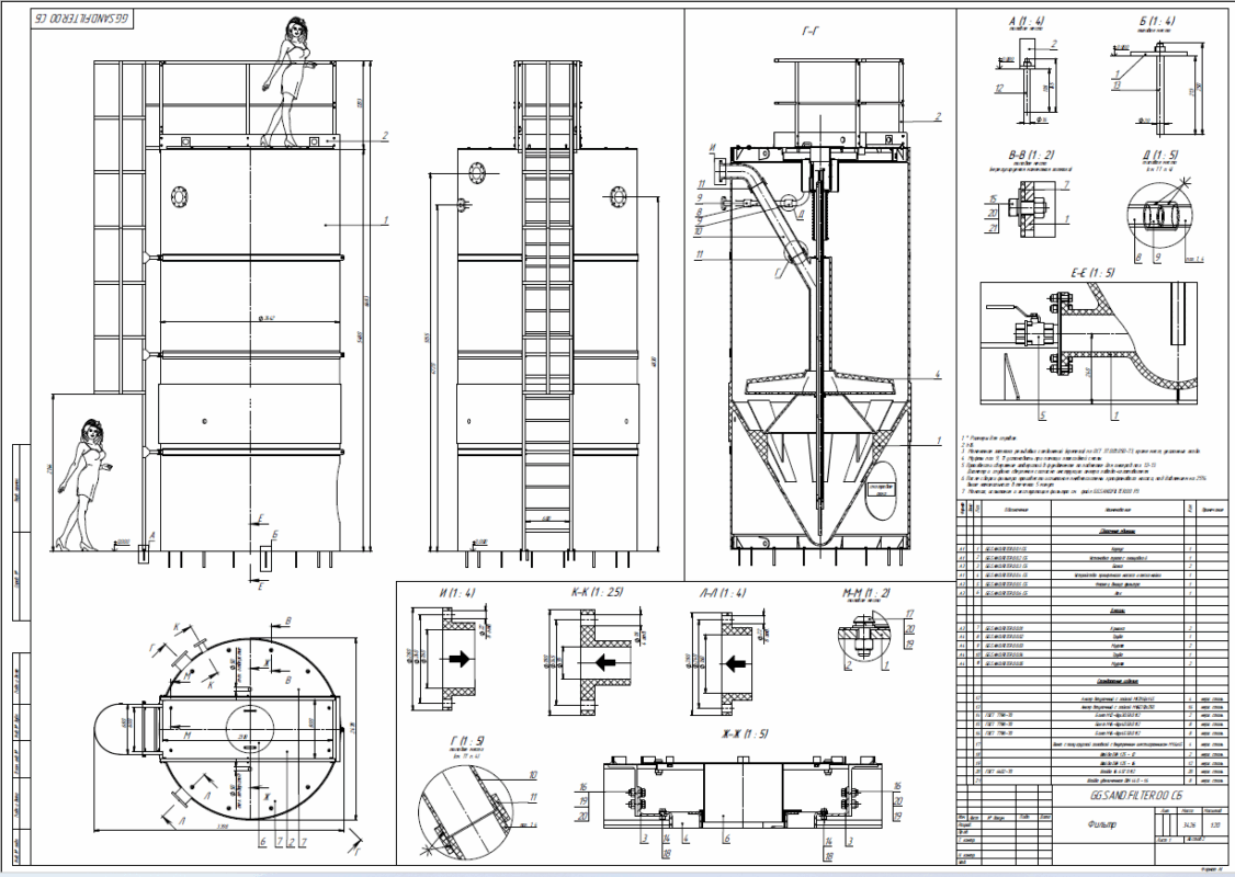
Песчаный фильтр ПФ-4500 (аналог DS 4500 GRP)

0
2
51
0
0
3 000

Высокоэффективный песчаный фильтр непрерывного действия, разработанный для удаления взвешенных веществ из различных типов воды, от питьевой до технологической и сточной. Его уникальная особенность заключается во встроенной системе промывки песка, обеспечивающей непрерывную и автоматическую работу без остановки процесса фильтрации. Это позволяет значительно снизить трудозатраты на обслуживание и повысить общую эффективность системы очистки.

Принцип работы фильтра основан на противоточной фильтрации. Неочищенная вода подается в нижнюю часть фильтра и поднимается вверх через слой песка. По мере подъема вода фильтруется, и взвешенные вещества задерживаются в песке. Загрязненный песок непрерывно извлекается из нижней части фильтра с помощью эрлифта и транспортируется в верхнюю часть, где происходит его промывка.

В верхней части фильтра песок промывается чистой водой, и отделенные загрязнения удаляются через сливной патрубок. Очищенный песок возвращается обратно в фильтр, обеспечивая непрерывный цикл фильтрации и промывки.

Основные характеристики
• Производительность: Варьируется в зависимости от качества исходной воды и требуемой степени очистки.
• Материал корпуса: Стеклопластик (GRP), обеспечивающий высокую прочность и устойчивость к коррозии.
• Размер зерна фильтрующего материала: Подбирается в соответствии с типом загрязнений.
• Автоматическая работа: Непрерывная фильтрация и промывка без остановки процесса.
• Простота обслуживания: Минимальные трудозатраты благодаря автоматизированной системе.
• Компактность: Относительно небольшие размеры по сравнению с традиционными фильтрами.

Данный фильтр, изготовлен в 2018 году, на данный момент демонстрирует устойчивую и надежную работу.


Сообщить о проблеме
Дата
30.10.2025
Язык
Русский
Состав
3D модели SolidWorks2024 - 122 файлов (файл главной сборки GG.SAND.FILTER.00 СБ.SLDASM) В моделях "прописаны" кодировки материалов и покупных изделий. В архиве: - 3D модели; - чертеж общего вида c спецификацией; - дополнительно файл общей сборки в формате STEP.
Софт
SolidWorks 24 Как открыть?
Отзывов пока нет
Задать вопрос
Содержимое архива
    • icon-pdf
      GG.SAND.FILTER.00 СБ.pdf
    • icon-sldasm
      GG.SAND.FILTER.00 СБ.SLDASM
    • icon-slddrw
      GG.SAND.FILTER.00 СБ.SLDDRW
    • icon-step
      GG.SAND.FILTER.00 СБ.STEP
    • icon-sldprt
      GG.SAND.FILTER.00.01.SLDPRT
    • icon-sldprt
      GG.SAND.FILTER.00.02.SLDPRT
    • icon-sldprt
      GG.SAND.FILTER.00.03.SLDPRT
    • icon-sldprt
      GG.SAND.FILTER.00.04.SLDPRT
    • icon-sldprt
      GG.SAND.FILTER.00.05.SLDPRT
    • icon-sldasm
      GG.SAND.FILTER.00.1 СБ.SLDASM
    • icon-sldprt
      GG.SAND.FILTER.00.1.01.SLDPRT
    • icon-sldasm
      GG.SAND.FILTER.00.1.1 СБ.SLDASM
    • icon-sldprt
      GG.SAND.FILTER.00.1.1.01.SLDPRT
    • icon-sldprt
      GG.SAND.FILTER.00.1.1.02.SLDPRT
    • icon-sldasm
      GG.SAND.FILTER.00.1.2 СБ.SLDASM
    • icon-sldprt
      GG.SAND.FILTER.00.1.2.01.SLDPRT
    • icon-sldprt
      GG.SAND.FILTER.00.1.2.02.SLDPRT
    • icon-sldprt
      GG.SAND.FILTER.00.1.2.03.SLDPRT
    • icon-sldprt
      GG.SAND.FILTER.00.1.2.04.SLDPRT
    • icon-sldprt
      GG.SAND.FILTER.00.1.2.06.SLDPRT
    • icon-sldasm
      GG.SAND.FILTER.00.2 СБ.SLDASM
    • icon-sldprt
      GG.SAND.FILTER.00.2.01.SLDPRT
    • icon-sldprt
      GG.SAND.FILTER.00.2.02.SLDPRT
    • icon-sldprt
      GG.SAND.FILTER.00.2.1.01.SLDPRT
    • icon-sldprt
      GG.SAND.FILTER.00.2.1.02.SLDPRT
    • icon-sldprt
      GG.SAND.FILTER.00.2.1.04.SLDPRT
    • icon-sldasm
      GG.SAND.FILTER.00.2.1.SLDASM
    • icon-sldprt
      GG.SAND.FILTER.00.2.2.01.SLDPRT
    • icon-sldprt
      GG.SAND.FILTER.00.2.2.02.SLDPRT
    • icon-sldprt
      GG.SAND.FILTER.00.2.2.03.SLDPRT
    • icon-sldprt
      GG.SAND.FILTER.00.2.2.04.SLDPRT
    • icon-sldprt
      GG.SAND.FILTER.00.2.2.05.SLDPRT
    • icon-sldasm
      GG.SAND.FILTER.00.2.2.SLDASM
    • icon-sldprt
      GG.SAND.FILTER.00.2.3.01.SLDPRT
    • icon-sldprt
      GG.SAND.FILTER.00.2.3.02.SLDPRT
    • icon-sldprt
      GG.SAND.FILTER.00.2.3.03.SLDPRT
    • icon-sldasm
      GG.SAND.FILTER.00.2.3.SLDASM
    • icon-sldprt
      GG.SAND.FILTER.00.2.4.01.SLDPRT
    • icon-sldprt
      GG.SAND.FILTER.00.2.4.02.SLDPRT
    • icon-sldasm
      GG.SAND.FILTER.00.2.4.SLDASM
    • icon-sldprt
      GG.SAND.FILTER.00.2.5.01.SLDPRT
    • icon-sldprt
      GG.SAND.FILTER.00.2.5.02.SLDPRT
    • icon-sldasm
      GG.SAND.FILTER.00.2.5.SLDASM
    • icon-sldprt
      GG.SAND.FILTER.00.2.6.01.SLDPRT
    • icon-sldprt
      GG.SAND.FILTER.00.2.6.02.SLDPRT
    • icon-sldprt
      GG.SAND.FILTER.00.2.6.03.SLDPRT
    • icon-sldprt
      GG.SAND.FILTER.00.2.6.04.SLDPRT
    • icon-sldprt
      GG.SAND.FILTER.00.2.6.05.SLDPRT
    • icon-sldprt
      GG.SAND.FILTER.00.2.6.06.SLDPRT
    • icon-sldprt
      GG.SAND.FILTER.00.2.6.07.SLDPRT
    • icon-sldprt
      GG.SAND.FILTER.00.2.6.08.SLDPRT
    • icon-sldprt
      GG.SAND.FILTER.00.2.6.09.SLDPRT
    • icon-sldprt
      GG.SAND.FILTER.00.2.6.10.SLDPRT
    • icon-sldprt
      GG.SAND.FILTER.00.2.6.11.SLDPRT
    • icon-sldprt
      GG.SAND.FILTER.00.2.6.12.SLDPRT
    • icon-sldprt
      GG.SAND.FILTER.00.2.6.13.SLDPRT
    • icon-sldasm
      GG.SAND.FILTER.00.2.6.SLDASM
    • icon-sldasm
      GG.SAND.FILTER.00.3 СБ.SLDASM
    • icon-sldprt
      GG.SAND.FILTER.00.3.01.SLDPRT
    • icon-sldprt
      GG.SAND.FILTER.00.3.02.SLDPRT
    • icon-sldasm
      GG.SAND.FILTER.00.4 СБ.SLDASM
    • icon-sldprt
      GG.SAND.FILTER.00.4.01.SLDPRT
    • icon-sldprt
      GG.SAND.FILTER.00.4.02.SLDPRT
    • icon-sldprt
      GG.SAND.FILTER.00.4.03.SLDPRT
    • icon-sldprt
      GG.SAND.FILTER.00.4.05.SLDPRT
    • icon-sldprt
      GG.SAND.FILTER.00.4.06.SLDPRT
    • icon-sldprt
      GG.SAND.FILTER.00.4.07.SLDPRT
    • icon-sldasm
      GG.SAND.FILTER.00.4.1 CБ.SLDASM
    • icon-sldprt
      GG.SAND.FILTER.00.4.1.01.SLDPRT
    • icon-sldprt
      GG.SAND.FILTER.00.4.1.02.SLDPRT
    • icon-sldprt
      GG.SAND.FILTER.00.4.1.03.SLDPRT
    • icon-sldprt
      GG.SAND.FILTER.00.4.1.04.SLDPRT
    • icon-sldprt
      GG.SAND.FILTER.00.4.1.05.SLDPRT
    • icon-sldprt
      GG.SAND.FILTER.00.4.1.06.SLDPRT
    • icon-sldprt
      GG.SAND.FILTER.00.4.1.07.SLDPRT
    • icon-sldasm
      GG.SAND.FILTER.00.4.1.1 СБ.SLDASM
    • icon-sldprt
      GG.SAND.FILTER.00.4.1.1.01.SLDPRT
    • icon-sldprt
      GG.SAND.FILTER.00.4.1.1.02.SLDPRT
    • icon-sldprt
      GG.SAND.FILTER.00.4.1.1.03.SLDPRT
    • icon-sldasm
      GG.SAND.FILTER.00.4.2 СБ.SLDASM
    • icon-sldprt
      GG.SAND.FILTER.00.4.2.01.SLDPRT
    • icon-sldprt
      GG.SAND.FILTER.00.4.2.02.SLDPRT
    • icon-sldprt
      GG.SAND.FILTER.00.4.2.03.SLDPRT
    • icon-sldprt
      GG.SAND.FILTER.00.4.2.04.SLDPRT
    • icon-sldprt
      GG.SAND.FILTER.00.4.2.05.SLDPRT
    • icon-sldprt
      GG.SAND.FILTER.00.4.2.06.SLDPRT
    • icon-sldasm
      GG.SAND.FILTER.00.4.3 СБ.SLDASM
    • icon-sldprt
      GG.SAND.FILTER.00.4.3.01.SLDPRT
    • icon-sldprt
      GG.SAND.FILTER.00.4.3.02.SLDPRT
    • icon-sldprt
      GG.SAND.FILTER.00.4.3.03.SLDPRT
    • icon-sldprt
      GG.SAND.FILTER.00.4.3.04.SLDPRT
    • icon-sldprt
      GG.SAND.FILTER.00.4.3.05.SLDPRT
    • icon-sldasm
      GG.SAND.FILTER.00.4.4 СБ.SLDASM
    • icon-sldprt
      GG.SAND.FILTER.00.4.4.01.SLDPRT
    • icon-sldprt
      GG.SAND.FILTER.00.4.4.02.SLDPRT
    • icon-sldasm
      GG.SAND.FILTER.00.5 СБ.SLDASM
    • icon-sldprt
      GG.SAND.FILTER.00.5.01.SLDPRT
    • icon-sldprt
      GG.SAND.FILTER.00.5.02.SLDPRT
    • icon-sldasm
      GG.SAND.FILTER.00.6 СБ.SLDASM
    • icon-sldprt
      GG.SAND.FILTER.00.6.01.SLDPRT
    • icon-sldprt
      GG.SAND.FILTER.00.6.02.SLDPRT
    • icon-sldprt
      GG.SAND.FILTER.00.6.03.SLDPRT
    • icon-sldprt
      U-образное уплотнение 92х80х9,6.SLDPRT
    • icon-sldprt
      Адаптер X6512 8-1_8.SLDPRT
    • icon-sldprt
      Адаптер X6522 8-1_8.SLDPRT
    • icon-sldprt
      Анкер втулочный с гайкой М12(16)х145.SLDPRT
    • icon-sldprt
      Анкер втулочный с гайкой М16(20)х250.SLDPRT
    • icon-sldprt
      Болт M6 ГОСТ 7798-70.SLDPRT
    • icon-sldprt
      Болт M8 ГОСТ 7798-70.SLDPRT
    • icon-sldprt
      Болт M12 ГОСТ 7798-70.SLDPRT
    • icon-sldprt
      Болт M16 ГОСТ 7798-70.SLDPRT
    • icon-sldprt
      Винт с полукруглой головкой с внутренним шестигранником.sldprt
    • icon-sldprt
      Гайка ГОСТ 5915-70.SLDPRT
    • icon-sldprt
      Гайка самоконтрящая DIN 985.SLDPRT
    • icon-sldprt
      Кран шаровый нержавеющий Вр_Вр Ду 50 (60,3мм) AISI 304.SLDPRT
    • icon-sldprt
      Ниппель Прив. Ду 50 (60,3 Мм) AISI 304 (W).SLDPRT
    • icon-sldprt
      Ручка бугельная, art K0188.214008.SLDPRT
    • icon-sldprt
      Трубопровод PTFE 8_6 (фторопласт).SLDPRT
    • icon-sldprt
      Уплотнительная плоская шайба K1491.082.SLDPRT
    • icon-sldprt
      Шайба DIN 125.SLDPRT
    • icon-sldprt
      Шайба ГОСТ 6402-70.sldprt
    • icon-sldprt
      Шайба увеличенная DIN 440.SLDPRT
Чтобы скачать чертеж, 3D модель или проект, Вы должны зарегистрироваться и принять участие в жизни сайта. Посмотрите, как тут скачивать файлы
Отзывов пока нет
Чтобы оставить отзыв, необходимо войти
Войти с помощью:

Используя функцию входа через сторонние сервисы, Вы соглашаетесь на обработку персональных данных в соответствии с Политикой конфиденциальности