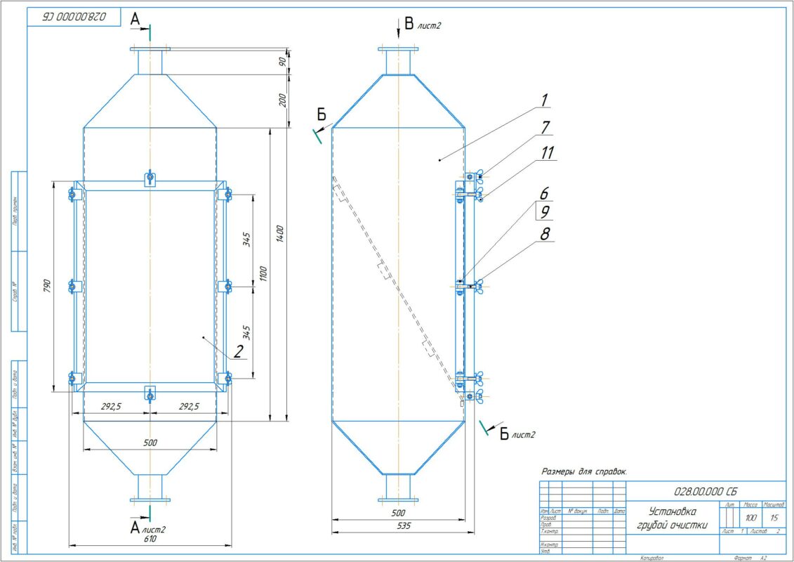
Установка грубой очистки предназначена для очистки сыпучих материалов от крупных примесей. Очищаемый материал вертикально подается на наклонную решетку, установленную в коробе. Крупные примеси задерживается на решетке. Мелкие частицы проходят сквозь решетку и падают в нижнюю воронку короба установки.
- Главная -
- Чертежи -
- Промышленность -
- Оборудование для технологических процессов -
- Очистка и сепарирование -
- Установка грубой очистки.
Установка грубой очистки.
0
1
19
0
0
100
Сообщить о проблеме
Автор
Дата
16.04.2026
Язык
Русский
Состав
Сборочные чертежи, спецификации, чертежи деталей
Софт
КОМПАС-3D 23
Как открыть?
Отзывов пока нет
Содержимое архива
-
-
028.00.000.cdw
-
028.00.000.spw
-
028.01.000.cdw
-
028.01.000.spw
-
028.01.001.cdw
-
028.01.002.cdw
-
028.01.003.cdw
-
028.01.004.cdw
-
028.02.000.cdw
-
028.02.000.spw
-
028.02.001.cdw
-
028.02.002.cdw
-
028.02.003.cdw
-
028.03.000.cdw
-
028.03.000.spw
-
028.03.001.cdw
-
Чтобы скачать чертеж, 3D модель или проект, Вы должны зарегистрироваться
и принять участие в жизни сайта. Посмотрите, как тут скачивать
файлы
Отзывов пока нет
Чтобы оставить отзыв, необходимо войти
Войти с помощью:
Используя функцию входа через сторонние сервисы, Вы соглашаетесь на обработку персональных данных в соответствии с Политикой конфиденциальности
Используя функцию входа через сторонние сервисы, Вы соглашаетесь на обработку персональных данных в соответствии с Политикой конфиденциальности