Перейти к содержимому
Войти

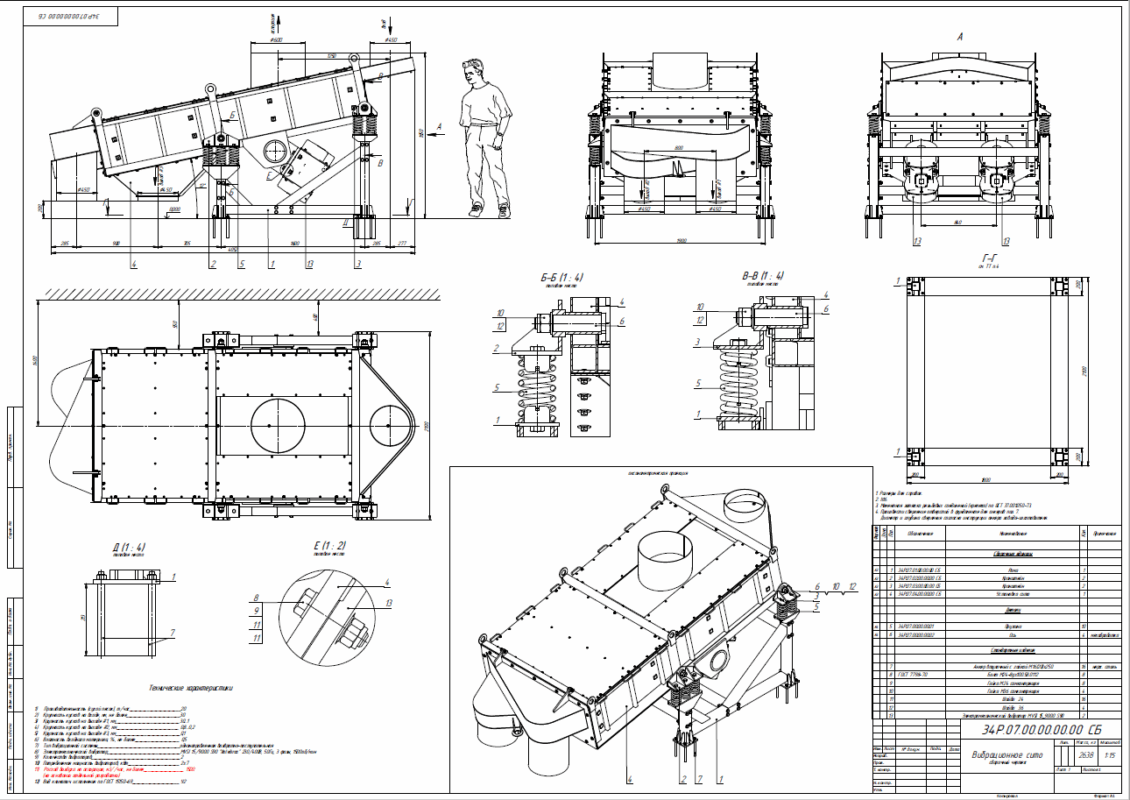
Вибрационное сито Н-20

0
4
71
0
0
2 000

Сито вибрационное предназначено для разделения на несколько классов крупности сыпучих мелкозернистых материалов малой и средней абразивности.

Технические характеристики
1) Производительность (сухой песок), т/час____________________20
2) Крупность кусков на входе, мм, не более____________________30
3) Крупность кусков на выходе #1, мм__________________________30...1
4) Крупность кусков на выходе #2, мм__________________________0,8...0,2
5) Крупность кусков на выходе #3, мм__________________________0,1
6) Влажность входного материала, %, не более_______________ 0,5
7) Тип вибрационной системы__________________________________однонаправленная возвратно-поступательная
8) Электромеханический вибратор_____________________________MVSI 15/9000 S90 "Italvibras" 230/400B, 50Гц, 3 фазы, 1500об/мин
9) Количество вибраторов______________________________________2
10) Потребляемая мощность вибраторов, кВт__________________ 2х7
11) Расход воздуха на аспирацию, м3//час, не более__________1500 (на основании отдельной разработки)
12) Вид климатич. исполнения по ГОСТ 15150-69_______________У2

3D модели SolidWorks2024 - 146 файлов (файл главной сборки 34Р.07.00.00.00.00 СБ.SLDASM)
В моделях "прописаны" кодировки материалов и покупных изделий.

Данное сито, изготовлено в 2022 году, на данный момент демонстрирует устойчивую и надежную работу.


Сообщить о проблеме
Дата
30.10.2025
Язык
Русский
Состав
Файлы в архиве. - модели; - чертеж общего вида с спецификацией; - дополнительно общий вид в формате STEP.
Софт
SolidWorks 24 Как открыть?
Отзывов пока нет
Задать вопрос
Содержимое архива
    • icon-pdf 34Р.07.00.00.00.00 СБ.pdf
    • icon-sldasm 34Р.07.00.00.00.00 СБ.SLDASM
    • icon-slddrw 34Р.07.00.00.00.00 СБ.SLDDRW
    • icon-step 34Р.07.00.00.00.00 СБ.STEP
    • icon-sldprt 34Р.07.00.00.00.01.SLDPRT
    • icon-sldprt 34Р.07.00.00.00.02.SLDPRT
    • icon-sldasm 34Р.07.01.00.00.00 СБ.SLDASM
    • icon-sldprt 34Р.07.01.00.00.01.SLDPRT
    • icon-sldasm 34Р.07.01.01.00.00 СБ.SLDASM
    • icon-sldprt 34Р.07.01.01.00.01.SLDPRT
    • icon-sldprt 34Р.07.01.01.00.02.SLDPRT
    • icon-sldprt 34Р.07.01.01.00.03.SLDPRT
    • icon-sldprt 34Р.07.01.01.00.04.SLDPRT
    • icon-sldprt 34Р.07.01.01.00.05.SLDPRT
    • icon-sldprt 34Р.07.01.01.00.06.SLDPRT
    • icon-sldprt 34Р.07.01.01.00.07.SLDPRT
    • icon-sldprt 34Р.07.01.01.00.08.SLDPRT
    • icon-sldprt 34Р.07.01.01.00.09.SLDPRT
    • icon-sldprt 34Р.07.01.01.00.10.SLDPRT
    • icon-sldprt 34Р.07.01.01.00.11.SLDPRT
    • icon-sldasm 34Р.07.01.02.00.00 СБ.SLDASM
    • icon-sldprt 34Р.07.01.02.00.01.SLDPRT
    • icon-sldprt 34Р.07.01.02.00.02.SLDPRT
    • icon-sldasm 34Р.07.02.00.00.00 СБ.SLDASM
    • icon-sldprt 34Р.07.02.00.00.01.SLDPRT
    • icon-sldprt 34Р.07.02.00.00.02.SLDPRT
    • icon-sldprt 34Р.07.02.00.00.03.SLDPRT
    • icon-sldprt 34Р.07.02.00.00.04.SLDPRT
    • icon-sldprt 34Р.07.02.00.00.05.SLDPRT
    • icon-sldasm 34Р.07.03.00.00.00 СБ.SLDASM
    • icon-sldprt 34Р.07.03.00.00.01.SLDPRT
    • icon-sldprt 34Р.07.03.00.00.02.SLDPRT
    • icon-sldprt 34Р.07.03.00.00.03.SLDPRT
    • icon-sldasm 34Р.07.04.00.00.00 СБ.SLDASM
    • icon-sldprt 34Р.07.04.00.00.01.SLDPRT
    • icon-sldprt 34Р.07.04.00.00.02.SLDPRT
    • icon-sldprt 34Р.07.04.00.00.03.SLDPRT
    • icon-sldprt 34Р.07.04.00.00.04.SLDPRT
    • icon-sldprt 34Р.07.04.00.00.05.SLDPRT
    • icon-sldasm 34Р.07.04.01.00.00 СБ.SLDASM
    • icon-sldprt 34Р.07.04.01.00.01.SLDPRT
    • icon-sldprt 34Р.07.04.01.00.02.SLDPRT
    • icon-sldprt 34Р.07.04.01.00.03.SLDPRT
    • icon-sldasm 34Р.07.04.01.01.00 СБ.SLDASM
    • icon-sldprt 34Р.07.04.01.01.01.SLDPRT
    • icon-sldprt 34Р.07.04.01.01.02.SLDPRT
    • icon-sldprt 34Р.07.04.01.01.03.SLDPRT
    • icon-sldprt 34Р.07.04.01.01.04.SLDPRT
    • icon-sldprt 34Р.07.04.01.01.05.SLDPRT
    • icon-sldprt 34Р.07.04.01.01.06.SLDPRT
    • icon-sldprt 34Р.07.04.01.01.07.SLDPRT
    • icon-sldprt 34Р.07.04.01.01.08.SLDPRT
    • icon-sldprt 34Р.07.04.01.01.09.SLDPRT
    • icon-sldprt 34Р.07.04.01.01.10.SLDPRT
    • icon-sldprt 34Р.07.04.01.01.11.SLDPRT
    • icon-sldprt 34Р.07.04.01.01.12.SLDPRT
    • icon-sldprt 34Р.07.04.01.01.13.SLDPRT
    • icon-sldprt 34Р.07.04.01.01.14.SLDPRT
    • icon-sldprt 34Р.07.04.01.01.15.SLDPRT
    • icon-sldprt 34Р.07.04.01.01.16.SLDPRT
    • icon-sldprt 34Р.07.04.01.01.17.SLDPRT
    • icon-sldprt 34Р.07.04.01.01.18.SLDPRT
    • icon-sldprt 34Р.07.04.01.01.19.SLDPRT
    • icon-sldprt 34Р.07.04.01.01.20.SLDPRT
    • icon-sldprt 34Р.07.04.01.01.21.SLDPRT
    • icon-sldprt 34Р.07.04.01.01.22.SLDPRT
    • icon-sldprt 34Р.07.04.01.01.23.SLDPRT
    • icon-sldprt 34Р.07.04.01.01.24.SLDPRT
    • icon-sldprt 34Р.07.04.01.01.25.SLDPRT
    • icon-sldprt 34Р.07.04.01.01.26.SLDPRT
    • icon-sldprt 34Р.07.04.01.01.28.SLDPRT
    • icon-sldprt 34Р.07.04.01.01.29.SLDPRT
    • icon-sldprt 34Р.07.04.01.01.30.SLDPRT
    • icon-sldprt 34Р.07.04.01.01.31.SLDPRT
    • icon-sldprt 34Р.07.04.01.01.32.SLDPRT
    • icon-sldprt 34Р.07.04.01.01.33.SLDPRT
    • icon-sldprt 34Р.07.04.01.01.34.SLDPRT
    • icon-sldprt 34Р.07.04.01.01.35.SLDPRT
    • icon-sldprt 34Р.07.04.01.01.36.SLDPRT
    • icon-sldasm 34Р.07.04.01.02.00 СБ.SLDASM
    • icon-sldprt 34Р.07.04.01.02.00 СБ оболочка.SLDPRT
    • icon-sldprt 34Р.07.04.01.02.01.SLDPRT
    • icon-sldprt 34Р.07.04.01.02.02.SLDPRT
    • icon-sldprt 34Р.07.04.01.02.03.SLDPRT
    • icon-sldprt 34Р.07.04.01.02.04.SLDPRT
    • icon-sldprt 34Р.07.04.01.02.05.SLDPRT
    • icon-sldprt 34Р.07.04.01.02.06.SLDPRT
    • icon-sldprt 34Р.07.04.01.02.07.SLDPRT
    • icon-sldasm 34Р.07.04.02.00.00 СБ.SLDASM
    • icon-sldprt 34Р.07.04.02.00.01.SLDPRT
    • icon-sldprt 34Р.07.04.02.00.02.SLDPRT
    • icon-sldprt 34Р.07.04.02.00.03.SLDPRT
    • icon-sldprt 34Р.07.04.02.00.04.SLDPRT
    • icon-sldprt 34Р.07.04.02.00.05.SLDPRT
    • icon-sldprt 34Р.07.04.02.00.06.SLDPRT
    • icon-sldprt 34Р.07.04.02.00.07.SLDPRT
    • icon-sldprt 34Р.07.04.02.00.08.SLDPRT
    • icon-sldasm 34Р.07.04.03.00.00 СБ.SLDASM
    • icon-sldprt 34Р.07.04.03.00.01.SLDPRT
    • icon-sldprt 34Р.07.04.03.00.02.SLDPRT
    • icon-sldprt 34Р.07.04.03.00.03.SLDPRT
    • icon-sldprt 34Р.07.04.03.00.04.SLDPRT
    • icon-sldprt 34Р.07.04.03.00.05.SLDPRT
    • icon-sldprt 34Р.07.04.03.00.06.SLDPRT
    • icon-sldprt 34Р.07.04.03.00.07.SLDPRT
    • icon-sldprt 34Р.07.04.03.00.08.SLDPRT
    • icon-sldprt 34Р.07.04.03.00.09.SLDPRT
    • icon-sldprt 34Р.07.04.03.00.10.SLDPRT
    • icon-sldasm 34Р.07.04.04.00.00 СБ.SLDASM
    • icon-sldprt 34Р.07.04.04.00.01.SLDPRT
    • icon-sldprt 34Р.07.04.04.00.02.SLDPRT
    • icon-sldprt 34Р.07.04.04.00.03.SLDPRT
    • icon-sldprt 34Р.07.04.04.00.04.SLDPRT
    • icon-sldprt 34Р.07.04.04.00.05.SLDPRT
    • icon-sldprt 34Р.07.04.04.00.06.SLDPRT
    • icon-sldprt 34Р.07.04.04.00.07.SLDPRT
    • icon-sldprt 34Р.07.04.04.00.08.SLDPRT
    • icon-sldprt 34Р.07.04.04.00.09.SLDPRT
    • icon-sldprt 34Р.07.04.04.00.10.SLDPRT
    • icon-sldprt 34Р.07.04.04.00.11.SLDPRT
    • icon-sldprt 34Р.07.04.04.00.12.SLDPRT
    • icon-sldprt 34Р.07.04.04.00.13.SLDPRT
    • icon-sldasm 34Р.07.04.05.00.00 СБ.SLDASM
    • icon-sldprt 34Р.07.04.05.00.01.SLDPRT
    • icon-sldprt 34Р.07.04.05.00.02.SLDPRT
    • icon-sldasm 34Р.07.04.06.00.00 СБ.SLDASM
    • icon-sldasm 34Р.07.04.07.00.00 СБ.SLDASM
    • icon-sldprt 34Р.07.04.07.00.01.SLDPRT
    • icon-sldprt Анкер втулочный с гайкой М16(20)х250.SLDPRT
    • icon-sldprt Болт DIN 931.SLDPRT
    • icon-sldprt Болт M8 ГОСТ 7798-70.SLDPRT
    • icon-sldprt Болт M10 ГОСТ 7798-70.SLDPRT
    • icon-sldprt Болт M12 ГОСТ 7798-70.SLDPRT
    • icon-sldprt Болт M16 ГОСТ 7798-70.SLDPRT
    • icon-sldprt Болт M20 ГОСТ 7798-70.SLDPRT
    • icon-sldprt Болт M24 ГОСТ 7798-70.SLDPRT
    • icon-sldprt Винт внутренний шестигранник DIN 912 .SLDPRT
    • icon-sldprt Винт с полукруглой головкой с внутренним шестигранником.sldprt
    • icon-sldprt Гайка самоконтрящая.SLDPRT
    • icon-sldprt Гайка самоконтрящая DIN 985.SLDPRT
    • icon-sldprt Заклепка резьбовая DIN 7338.SLDPRT
    • icon-sldprt Шайба.SLDPRT
    • icon-sldprt Шайба DIN 125.SLDPRT
    • icon-sldprt Шайба пружинная DIN 127.SLDPRT
    • icon-sldprt Шайба увеличенная.SLDPRT
    • icon-sldprt Электромеханический вибратор MVSI 15_9000 S90.SLDPRT
Чтобы скачать чертеж, 3D модель или проект, Вы должны зарегистрироваться и принять участие в жизни сайта. Посмотрите, как тут скачивать файлы
Отзывов пока нет
Чтобы оставить отзыв, необходимо войти
Войти с помощью:

Используя функцию входа через сторонние сервисы, Вы соглашаетесь на обработку персональных данных в соответствии с Политикой конфиденциальности