Перейти к содержимому
Войти

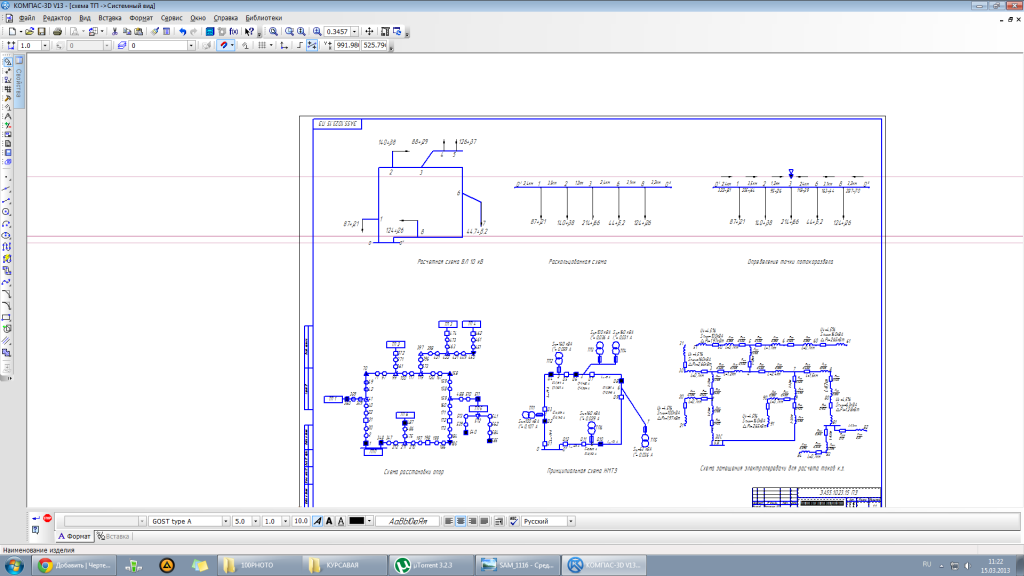
Расчетная схема системы электроснабжения населенного пункта по сетям линии 10 и 0,38 кВ

0
260
2465
1
0
20

Расчетная схема системы электроснабжения населенного пункта по сетям линии 10 и 0,38 кВ. Так же схемы расстановки опор. Для проектирования систем электроснабжения.

Расчетная схема ВЛ 10 кВ
Раскольцованная схема
Определение точки потокораздела
Схема замещения электропередачи для расчета токов к.з.
Принципиальная схема НМТЗ
Схема расстановки опор


Сообщить о проблеме
Автор
user-avatar irek444
Дата
18.03.2013
Язык
Русский
Состав
Расчетная схема
Софт
КОМПАС-3D 12 Как открыть?
Отзывов пока нет
Задать вопрос
Содержимое архива
  • icon-cdw
    схема ТП.cdw
Чтобы скачать чертеж, 3D модель или проект, Вы должны зарегистрироваться и принять участие в жизни сайта. Посмотрите, как тут скачивать файлы
Отзывов пока нет
Чтобы оставить отзыв, необходимо войти
Войти с помощью:

Используя функцию входа через сторонние сервисы, Вы соглашаетесь на обработку персональных данных в соответствии с Политикой конфиденциальности