Перейти к содержимому
Войти

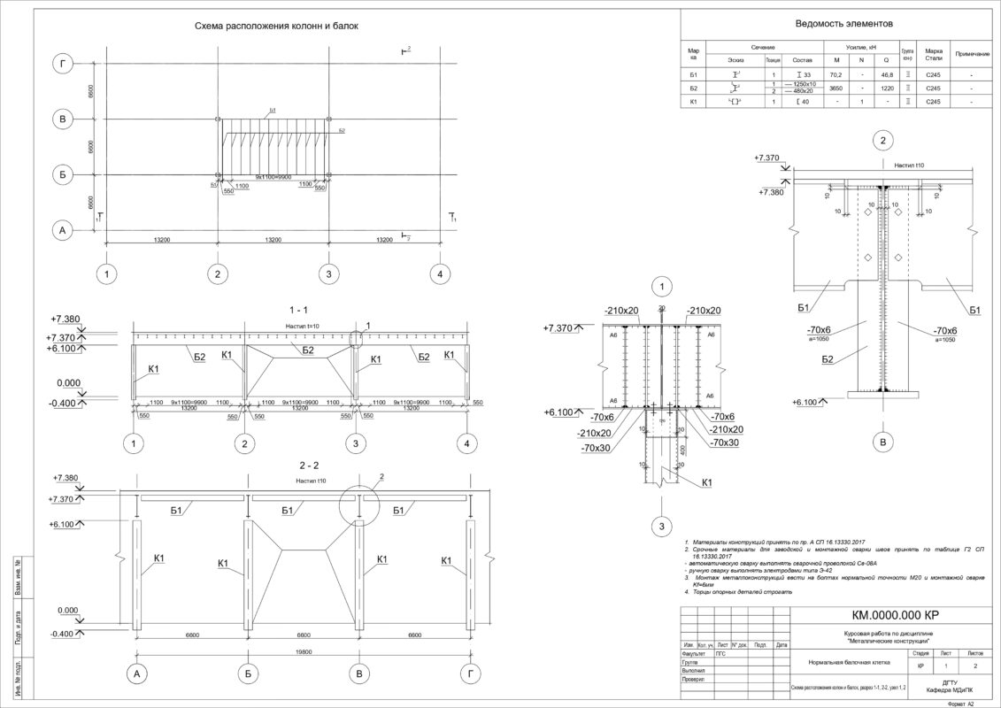
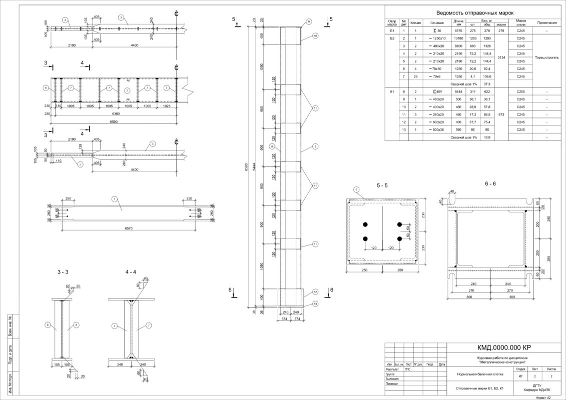
Рабочая площадка производственного здания (пролет главной балки – 10 м; пролет вспомогательной балки – 5,5 м;)

0
0
68
0
0
30

МИНИСТЕРСТВО НАУКИ И ВЫСШЕГО ОБРАЗОВАНИЯ РОССИЙСКОЙ ФЕДЕРАЦИИ
ФЕДЕРАЛЬНОЕ ГОСУДАРСТВЕННОЕ БЮДЖЕТНОЕ
ОБРАЗОВАТЕЛЬНОЕ УЧРЕЖДЕНИЕ ВЫСШЕГО ОБРАЗОВАНИЯ
«ДОНСКОЙ ГОСУДАРСТВЕННЫЙ ТЕХНИЧЕСКИЙ УНИВЕРСИТЕТ»
(ДГТУ)
Факультет Промышленного и гражданского строительства
Кафедра Инженерная защита окружающей среды
Курсовой проект по дисциплине Металлические конструкции
на тему: Рабочая площадка производственного здания

В данной работе рассматривается проектирование пролёта производственного здания. Произведен расчет всех несущих конструкций, выполнено проектирование соответствующих конструкций в программном комплексе AutoCAD 2024 с соответствующим оформлением. В пояснительной записке представлены все расчёты конструкций. Есть титульный лист и задание соответствующие требованиям вуза

Содержание

1 Расчет листового настила 3
2 Расчет прокатных балок 4
2.1 Расчет балок настила нормальной балочной клетки 4
2.2 Расчет балок настила сложной балочной клетки 6
2.3 Расчет вспомогательной балки сложной балочной клетки 7
3 Расчет главной балки 9
3.1 Сбор нагрузок на балку 9
3.2 Определение расчетного поперечного сечения 10
3.3 Изменение сечения 11
3.4 Выполнение проверок 12
3.5 Расчет и конструирование ребер жесткости 18
3.6 Расчет сварного поясного шва 18
3.7 Расчет опорного ребра 19
4 Расчет колонны 20
4.1 Подбор сечения из условия устойчивости относительно материальной оси 20
4.2 Определение раздвижки ветвей из условия устойчивости относительно свободной оси 21
4.3 Проверка устойчивости отдельных ветвей 22
4.4 Расчет соединительных планок 22
4.5 Расчет траверсы и опорной плиты 25
Список использованных информационных ресурсов 28

1. Исходные данные для выполнения курсовой работы:
- пролет главной балки – 10 м; пролет вспомогательной балки – 5,5 м; пролет балки настила – 3.5 м; шаг балок настила – 1.5 м;
- верх площадки находится на высоте – 7,5 м;
- временная нормативная нагрузка на площадку – 23 кПа;
- коэффициент надежности по нагрузке для временной нагрузки по СП 20.13330;
- настил принять из листовой стали, вспомогательные балки и балки настила принять прокатными, главные балки – сварными. Колонны – сквозные, двухветвевые, с соединением ветвей на планках;
- сопряжение вспомогательных балок с главными: этажное;
- опирание главной балки на колонну: боковое ;
- сталь для колонн, балок и настила: по СП 16.13330;
- класс бетона для фундаментов: В15.


Сообщить о проблеме
Автор
user-avatar user-2872514
Дата
21.09.2025
Язык
Русский
Состав
Чертежи КМ, КМД, ПЗ, Титульный лист и задание
Софт
AutoCAD 2024 Как открыть?
Отзывов пока нет
Задать вопрос
Содержимое архива
  • icon-jpg КМ_page-0001.jpg
  • icon-jpg КМД_page-0001.jpg
  • icon-dwg Металл 21.04.2025.dwg
  • icon-doc ПЗ.docx
  • icon-doc ТИТУЛ И ЗАДАНИЕ МК.docx
Чтобы скачать чертеж, 3D модель или проект, Вы должны зарегистрироваться и принять участие в жизни сайта. Посмотрите, как тут скачивать файлы
Отзывов пока нет
Чтобы оставить отзыв, необходимо войти
Войти с помощью:

Используя функцию входа через сторонние сервисы, Вы соглашаетесь на обработку персональных данных в соответствии с Политикой конфиденциальности