Перейти к содержимому
Войти

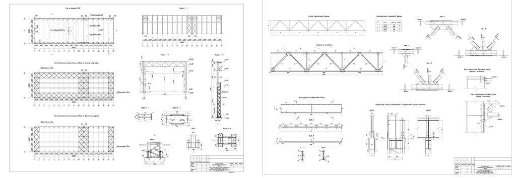
Стальной каркас производственного здания г. Иркутск

0
0
65
1
0
50

МГУ им. Н.П. Огарева, Металлические конструкции, включая сварку, КП на тему: Стальной каркас производственного здания, 2025

 Пролет цеха: 30 м
 Грузоподъёмность мостового крана: 50/12,5 т
 Отметка верха кранового рельса: 17.4 м
 Шаг колонн: 6 м
 Несущие конструкции кровли: Железобетонные плиты
 Длина здания: 144 м
 Класс бетона фундамента на осевое сжатие: В15
 Место строительства: Иркутск
 Утеплитель: Керамзит
 Марка стали
o Колонны: С390
o Стропильные фермы: С275
o Подкрановые балки: 275

СОДЕРЖАНИЕ

РЕФЕРАТ... 4
1 Компоновка конструктивной схемы каркаса здания 7
1.1 Разбивка сетки колонн 8
1.2 Определение вертикальных размеров рамы 8
1.3 Определение горизонтальных размеров рамы 9
2 Нагрузки, действующие на раму 10
2.1 Постоянные нагрузки 10
2.1.1 Собственный вес конструкций покрытия 10
2.1.2 Собственный вес, ограждающий конструкций и колонн 14
2.2 Временные нагрузки 17
2.2.1 Снеговая нагрузка 17
2.2.2 Ветровая нагрузка 18
2.2.3 Нагрузка от мостовых кранов 21
2.2.4 Определение жесткости сквозного ригеля 24
2.2.5 Определение жесткостей ступенчатой колонны 25
3 Статический расчет рамы 27
3.1 Расчетная схема поперечной рамы 27
3.2 Составление таблицы расчетных усилий 28
3.3 Определение расчетных сочетаний усилий 29
4 Конструктивный расчет ступенчатой колонны 32
4.1 Определение расчетных длин колонны 33
4.2 Подбор сечения надкрановой части колонны 34
4.3 Компоновка сечения надкрановой части колонны 35
4.4 Проверка местной устойчивости элементов колонны 37
4.5 Компоновка сечения и расчет подкрановой части колонны 41
4.6 Подбор сечения ветвей колонны………………………………...........42
4.7 Проверка устойчивости ветвей и стержня колонны в целом.............44
4.8 Расчет крепления раскосов решетки к ветви колонны........................50

5 Конструирование и расчет базы внецентренно-сжатой колонны…………...52
5.1 Определение размеров опорной плиты в плане………………..........54
5.2 Определение толщины опорной плиты………………………............56
5.3 Расчет траверсы………………………………………………..............58
5.4 Расчет анкерных болтов и пластин……………………………...........61
5.5 Расчет соединения надкрановой и подкрановой частей колонны….64
6 Компоновка сечения и расчет сплошной сварной подкрановой балки…….70
6.1 Определение расчетных сил и усилий……………………..…………71
6.2 Подбор сечения балки………………………………………………... 77
6.3 Проверка прочности и устойчивости балки……….…………………80
6.4 Расчет соединения поясов подкрановой балки со стенкой…………88
7 Расчет и конструирование стропильной фермы…………………………….89
7.1 Компоновка конструктивной схемы стропильной фермы………….89
7.2 Нагрузки действующие на ферму…………………………………….89
7.3 Статический расчет стропильной фермы…………………………….90
7.4 Подбор сечений элементов фермы…………………………...............91
7.5 Расчет и конструирование узлов фермы……………………..............98
7.6 Сопряжение фермы с колонной……………………………………..109
СПИСОК ИСПОЛЬЗОВАННЫХ ИСТОЧНИКОВ……………………….......115


Сообщить о проблеме
Автор
user-avatar user-2773145
Дата
10.03.2026
Язык
Русский
Состав
Пояснительная записка, чертежи компоновки металлического каркаса, задание, расчет в пк лира рамы и фермы
Софт
Отзывов пока нет
Задать вопрос
Содержимое архива
  • icon-doc Задание.docx
  • icon-dwg Металлы чертежи.dwg
  • icon-doc ПЗ металлы.docx
  • icon-pdf Приложения.pdf
  • icon-lira Рама.lir
  • icon-lira Ферма.lir
Чтобы скачать чертеж, 3D модель или проект, Вы должны зарегистрироваться и принять участие в жизни сайта. Посмотрите, как тут скачивать файлы
Отзывов пока нет
Чтобы оставить отзыв, необходимо войти
Войти с помощью:

Используя функцию входа через сторонние сервисы, Вы соглашаетесь на обработку персональных данных в соответствии с Политикой конфиденциальности