Перейти к содержимому
Войти

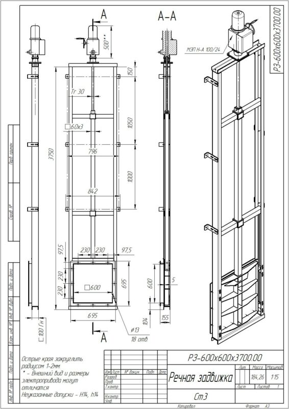
Затвор щитовой 600х600

0
0
49
0
0
450

Затвор щитовой для потоков жидкости (речная задвижка).Проходное сечение 600*600. Высота задвижки 3700мм


Сообщить о проблеме
Автор
user-avatar a1vitamin
Дата
27.02.2026
Язык
Русский
Состав
3D Сборка
Софт
КОМПАС-3D 24 Как открыть?
Отзывов пока нет
Задать вопрос
Содержимое архива
      • icon-jpg Снимок экрана 2026-02-19 093959.jpg
      • icon-jpg Электропривод - МЭП Н-А 100-24 380В 50Гц У1 IP65.jpg
      • icon-m3d Электропривод - МЭП Н-А 100-24 380В 50Гц У1 IP65.m3d
      • icon-step Электропривод - МЭП Н-А 100-24 380В 50Гц У1 IP65.stp
      • icon-m3d 10Гн - Швеллер гнутый.m3d
      • icon-m3d Квадрат 14.m3d
      • icon-a3d РЗ-600.01.00 СБ - Рама.a3d
      • icon-m3d РЗ-600.01.01 - Пластина.m3d
      • icon-m3d РЗ-600.01.02 - Лист гнутый.m3d
      • icon-m3d РЗ-600.01.03 - Горловина.m3d
      • icon-m3d РЗ-600.01.04 - Носик.m3d
      • icon-m3d РЗ-600.01.05 - Пластина скольжения.m3d
      • icon-m3d РЗ-600.01.06 - Распорка.m3d
      • icon-m3d РЗ-600.01.07 - Гайка.m3d
      • icon-m3d РЗ-600.01.07 - Корпус поворотной гайки.m3d
      • icon-m3d РЗ-600.01.08 - Шайба скольжения.m3d
      • icon-m3d РЗ-600.01.09 - Крышка.m3d
      • icon-m3d РЗ-600.01.11 - Проушина.m3d
      • icon-m3d РЗ-600.02.01 - Шибер.m3d
      • icon-m3d РЗ-600.02.02 - Винт.m3d
      • icon-m3d РЗ-600.02.03 - Шайба.m3d
      • icon-m3d Труба 60х60х4.m3d
    • icon-cdw РЗ-600х600х3700.00 - Речная задвижка.cdw
    • icon-jpg РЗ-600х600х3700.00 - Речная задвижка.jpg
    • icon-pdf РЗ-600х600х3700.00 - Речная задвижка.pdf
    • icon-a3d РЗ-600х600х3700.00 СБ - Речная задвижка.a3d
    • icon-step РЗ-600х600х3700.00 СБ - Речная задвижка.stp
    • icon-jpg РЗ-600х600х3700.00 СБ - Речная задвижка 3д.jpg
Чтобы скачать чертеж, 3D модель или проект, Вы должны зарегистрироваться и принять участие в жизни сайта. Посмотрите, как тут скачивать файлы
Отзывов пока нет
Чтобы оставить отзыв, необходимо войти
Войти с помощью:

Используя функцию входа через сторонние сервисы, Вы соглашаетесь на обработку персональных данных в соответствии с Политикой конфиденциальности