Перейти к содержимому
Войти

Индивидуальный жилой дом (ИЖД) в г. Арзамасе.

0
0
82
0
0
100

ЮЗГУ
Кафедра "Промышленное и гражданское строительство"
Дисциплина "Архитектура жилых и общественных зданий и сооружений"

КП на тему: Индивидуальный жилой дом (ИЖД) в г. Арзамасе.
2022 г.

Содержание пояснительной записки:
Введение
1. Исходные данные для проектирования
2. Объемно-планировочные решения
3. Конструктивные решения здания
4. Расчеты
4.1 Теплотехнические расчеты ограждающих конструкций здания
4.1.1 Теплотехнический расчет наружных стен здания
4.1.2 Теплотехнический расчет чердачного перекрытия
4.2 Упрощенный расчет междуэтажного перекрытия на звукоизоляцию
4.3 Упрощенный сбор нагрузок на фундамент
Заключение
Библиографический список

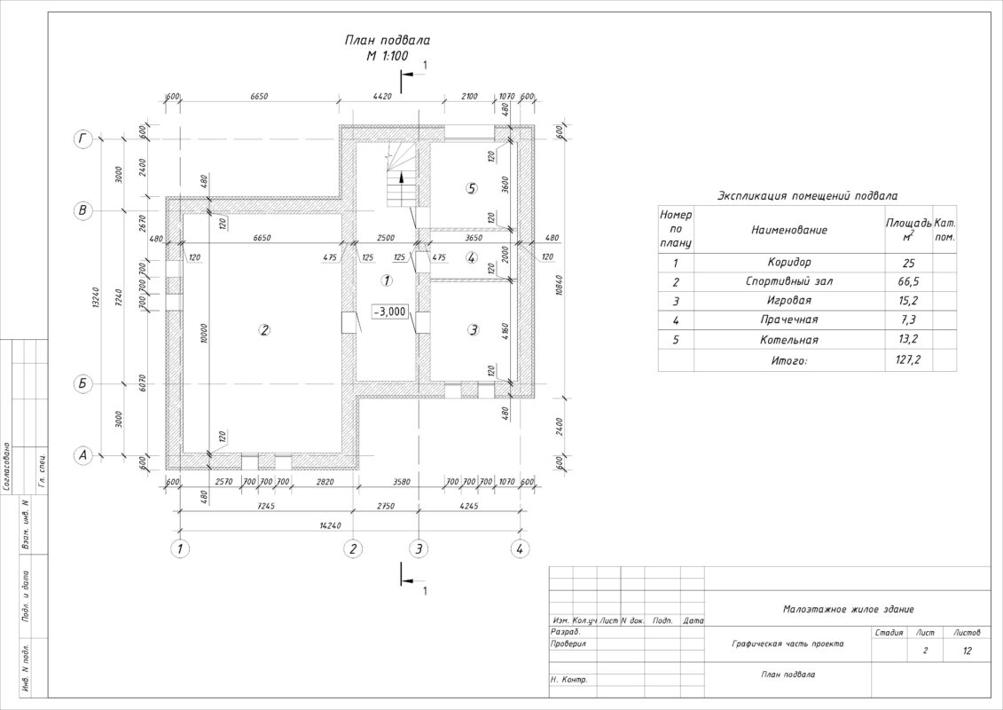
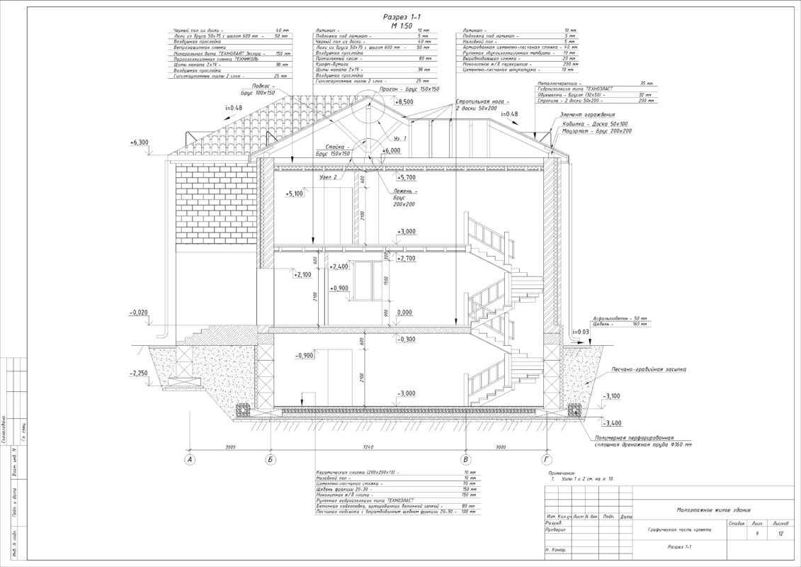
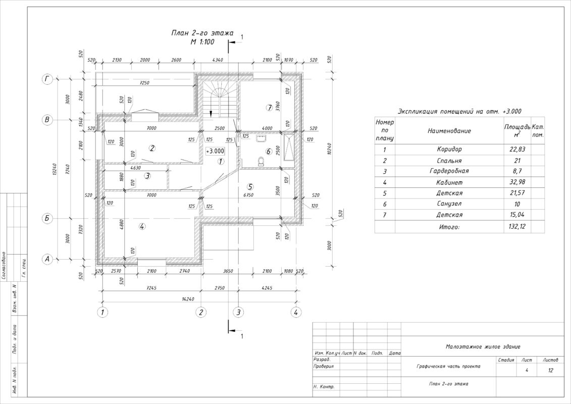
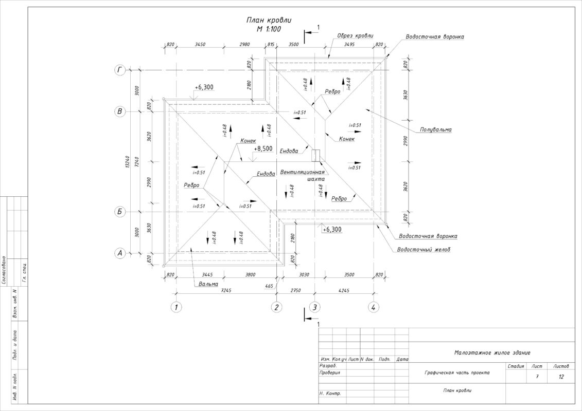
В курсовом проекте рассмотрен двухэтажный кирпичный жилой дом с холодным чердаком и подвалом.
Запроектированное здание рассчитано на проживание одной семьи численностью до 6 человек.
Здание имеет в плане сложную форму с габаритными размерами в крайних осях 1-4, А-Г 14.24×13.24 м, его общая высота составляет 8.5 м.
Здание имеет подвальный этаж, два надземных этажа и чердак. Высота этажей составляет 3.0 м. Высота подвала 3.0 м. Высота чердака 2.5 м.
Здание выполнено со следующей конструктивной схемой — несущими и самонесущими стенами из кирпича и перекрытиями по деревянным балкам. Фундаменты — ленточные из сборного железобетона. Междуэтажные и чердачные перекрытия здания выполнены по деревянным балкам.


Сообщить о проблеме
Автор
user-avatar user-8714997
Дата
09.04.2026
Язык
Русский
Состав
Лист 1. Фасад 1-5 Лист 2. План подвала Лист 3. План 1-го этажа Лист 4. План 2-го этажа Лист 5. План фундаментов Лист 6. План раскладки балок перекрытия 1-го этажа Лист 7. План кровли Лист 8. План стропил Лист 9. Разрез 1-1 Лист 10. Узлы 1, 2 Лист 11. Узлы разреза по стене Лист 12. План и разрез по лестничной клетке, ПЗ
Софт
AutoCAD 2018 Как открыть?
Отзывов пока нет
Задать вопрос
Содержимое архива
    • icon-dwg Графическая часть.dwg
    • icon-doc ПЗ.docx
Чтобы скачать чертеж, 3D модель или проект, Вы должны зарегистрироваться и принять участие в жизни сайта. Посмотрите, как тут скачивать файлы
Отзывов пока нет
Чтобы оставить отзыв, необходимо войти
Войти с помощью:

Используя функцию входа через сторонние сервисы, Вы соглашаетесь на обработку персональных данных в соответствии с Политикой конфиденциальности