Перейти к содержимому
Войти

Высотный многоквартирный дом на западе г. Омск

0
0
98
0
0
60

ЮЗГУ
Кафедра "Промышленное и гражданское строительство"
Дисциплина "Архитектура жилых и общественных зданий"
2024 г.

Содержание пояснительной записки:
Оглавление
1. Архитектурно-строительные решения
1.1. Характеристика площадки строительства
1.2. Объемно-планировочные решения здания
1.3. Конструктивные решения здания
1.4. Пожарная безопасность объекта
1.5. Теплотехнический расчет ограждающих конструкций
1.6. Требования к микроклимату и инсоляции
1.7. Решения по обеспечению условий жизнедеятельности маломобильных групп населения
1.8. Основные архитектурно-строительные показатели
Приложение А. Коэффициент качества планировочного решения квартир

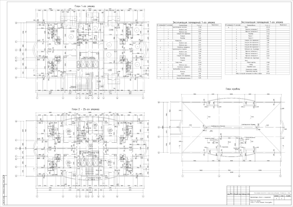
Проектируется высотное 25-ти этажное жилое многоквартирное здание. Высота здания 80,38 м. Длина здания в осях – 36,5 м, ширина в осях – 18,8 м. Высота этажа – 3,0 м. Высота первого этажа – 3,9 м.
Здание секционное, на этаже расположены: две трехкомнатные, две двухкомнатные и одна однокомнатная квартиры. Все квартиры в секции имеют выход в общий коридор. В здании предусмотрены 3 лифта, включая лифт для пожарных подразделений.
Здание каркасно-монолитной стеновой конструктивной системы (плиты перекрытия, стены и пилоны). Планировочная отметка земли: -1,050 м. За отметку 0,000 принята отметка чистого пола первого этажа.


Сообщить о проблеме
Автор
user-avatar user-8714997
Дата
09.04.2026
Язык
Русский
Состав
Лист 1. Фасад 1-11. Фасад А-Ж. Лист 2. План 1-го этажа. План 2-25 этажей. План кровли. Лист 3. Разрез 1-1. Узел 1. Узел 2. Узел 3., ПЗ
Софт
AutoCAD 2018 Как открыть?
Отзывов пока нет
Задать вопрос
Содержимое архива
    • icon-doc ПЗ.docx
    • icon-dwg Чертежи.dwg
Чтобы скачать чертеж, 3D модель или проект, Вы должны зарегистрироваться и принять участие в жизни сайта. Посмотрите, как тут скачивать файлы
Отзывов пока нет
Чтобы оставить отзыв, необходимо войти
Войти с помощью:

Используя функцию входа через сторонние сервисы, Вы соглашаетесь на обработку персональных данных в соответствии с Политикой конфиденциальности