Перейти к содержимому
Войти

Индивидуальный жилой дом (ИЖД) в республике Татарстан

0
0
43
0
0
100

ЮЗГУ
Кафедра "Промышленное и гражданское строительство"
Дисциплина "Архитектура жилых и общественных зданий и сооружений"
2022 г.

Содержание пояснительной записки:
Введение
1. Описание региона строительства
2. Объемно-планировочные решения
3. Конструктивные решения
4. Противопожарная безопасность
5. Доступность маломобильным группам населения
6. Теплотехнический расчет
Заключение
Библиографический список

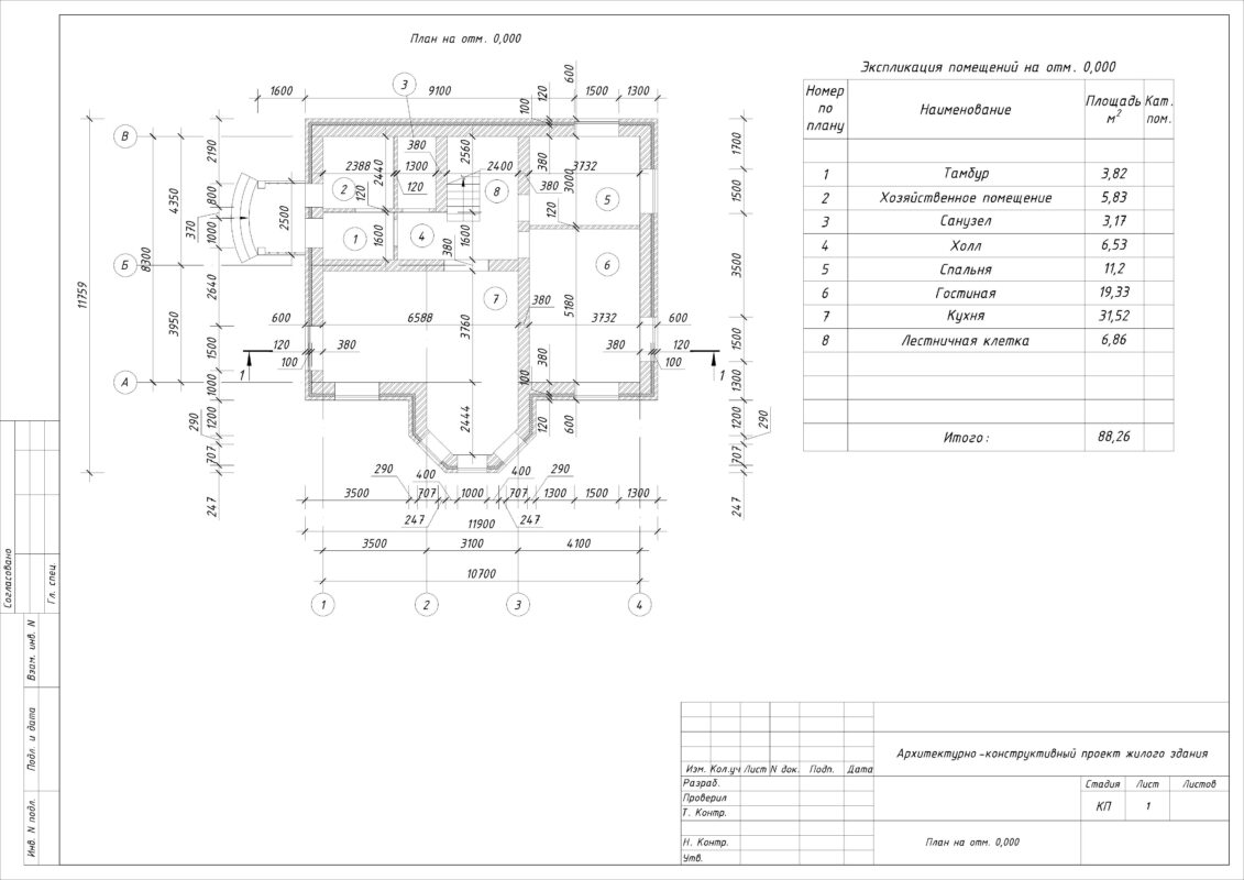
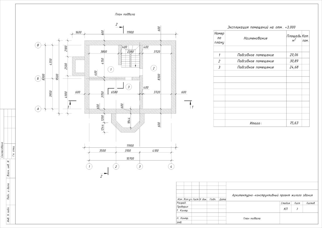
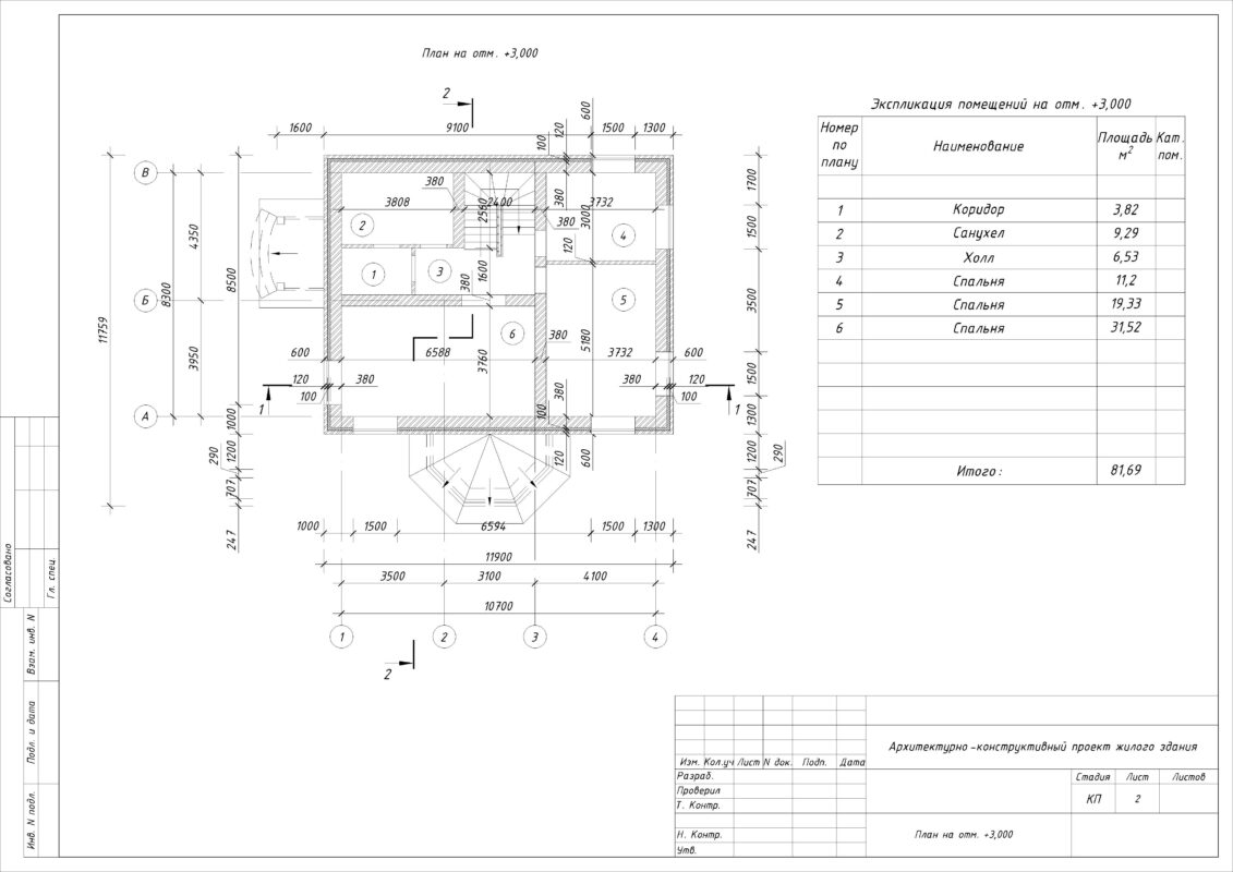
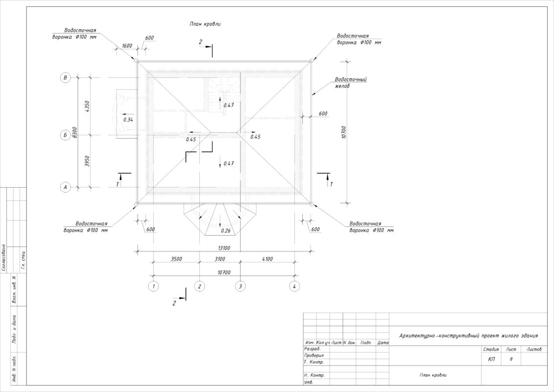
Здание имеет сложную конфигурацию в плане. В осях 1-4 - 10,7 м. В осях А-В – 8,3 м. Высота этажа – 3,0 м.
Конструктивная система проектируемого здания является бескаркасной. Основные несущие элементы здания: наружные стены и внутренние стены (перегородки). Основные конструктивные элементы здания выполнены из кирпича, железобетона и пиломатериалов из хвойных пород древесины.


Сообщить о проблеме
Автор
user-avatar user-8714997
Дата
09.04.2026
Язык
Русский
Состав
Лист 1. План на отм. 0,000 Лист 2. План на отм. +3,000 Лист 3. План подвала Лист 4. Фасады Лист 5. Разрезы Лист 6. Узлы Лист 7. Узлы Лист 8. План кровли Лист 9. План фундаментов Лист 10. Схема расположения перекрытия 1-го этажа Лист 11. Схема расположения перекрытия 2-го этажа Лист 12. Схема расположения конструктивных элементов кровли
Софт
AutoCAD 2018 Как открыть?
Отзывов пока нет
Задать вопрос
Содержимое архива
    • icon-dwg ГЧ.dwg
    • icon-doc ПЗ.docx
    • icon-doc Реф.docx
Чтобы скачать чертеж, 3D модель или проект, Вы должны зарегистрироваться и принять участие в жизни сайта. Посмотрите, как тут скачивать файлы
Отзывов пока нет
Чтобы оставить отзыв, необходимо войти
Войти с помощью:

Используя функцию входа через сторонние сервисы, Вы соглашаетесь на обработку персональных данных в соответствии с Политикой конфиденциальности