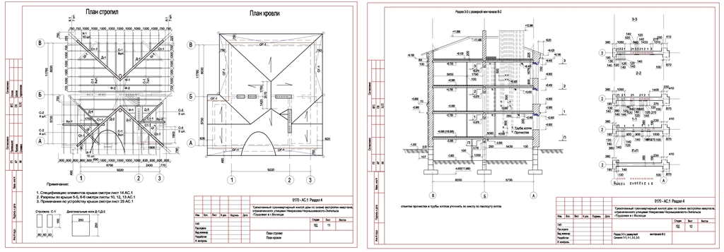
3-х этажный жилой дом из кирпича. Квартир в доме - 3, высота этажей - 3м, площадь жилого здания 337,8 кв.м.
- Главная -
- Чертежи -
- Строительство -
- Проекты домов -
- Многоэтажные жилые дома -
- Рабочий проект 3-х этажного 3-х квартирного жилого дома.
Рабочий проект 3-х этажного 3-х квартирного жилого дома.
0
3
285
1
1
50
Сообщить о проблеме
Автор
Дата
30.01.2024
Язык
Русский
Состав
АС0, АС1, АР
Софт
AutoCAD 2019
Как открыть?
Отзывов пока нет
Содержимое архива
-
АР.dwg
-
АС.0.dwg
-
АС.1.dwg
Чтобы скачать чертеж, 3D модель или проект, Вы должны зарегистрироваться
и принять участие в жизни сайта. Посмотрите, как тут скачивать
файлы
Отзывов пока нет
Чтобы оставить отзыв, необходимо войти
Войти с помощью:
Используя функцию входа через сторонние сервисы, Вы соглашаетесь на обработку персональных данных в соответствии с Политикой конфиденциальности
Здравствуйте. Хочу уточнить по чертежу, крыша здания плоская и имеется ли подвал здания
Здравствуйте. Добавили пару картинок, там есть план стропил и кровли, а также план фундаментов и цокольного этажа
будут ли в проекте узлы здания в разрезе? штуки 2-3
Добавили картинки с перченем чертеже разделов АС0 и АС1, а также содержимое АР
Используя функцию входа через сторонние сервисы, Вы соглашаетесь на обработку персональных данных в соответствии с Политикой конфиденциальности