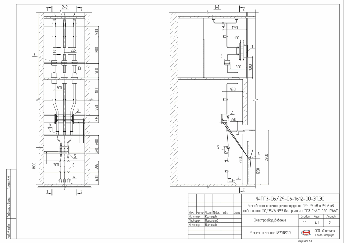
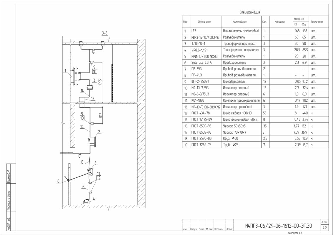
Реконструкция ПС 110/35/6 кВ Пикалево в части РУ-6 кВ. Проект был частично реализован в 2007 году. Претензий от ООО "..." гарантировано не будет
- Главная -
- Чертежи -
- Инженерные системы -
- Электроснабжение и освещение -
- Планы и разрезы ячеек РУ-6 кВ ПС 110/35/6 Пикалево
Планы и разрезы ячеек РУ-6 кВ ПС 110/35/6 Пикалево
0
0
41
1
0
100
Сообщить о проблеме
Автор
Дата
31.10.2025
Язык
Русский
Состав
Планы и разрезы ячеек РУ-6 кВ в старом бетонном исполнении с заменой выключателей и терминалов РЗА
Софт
AutoCAD 18
Как открыть?
Отзывов пока нет
Содержимое архива
-
ру6.dwg
Чтобы скачать чертеж, 3D модель или проект, Вы должны зарегистрироваться
и принять участие в жизни сайта. Посмотрите, как тут скачивать
файлы
Отзывов пока нет
Чтобы оставить отзыв, необходимо войти
Войти с помощью:
Используя функцию входа через сторонние сервисы, Вы соглашаетесь на обработку персональных данных в соответствии с Политикой конфиденциальности
Используя функцию входа через сторонние сервисы, Вы соглашаетесь на обработку персональных данных в соответствии с Политикой конфиденциальности