Перейти к содержимому
Войти

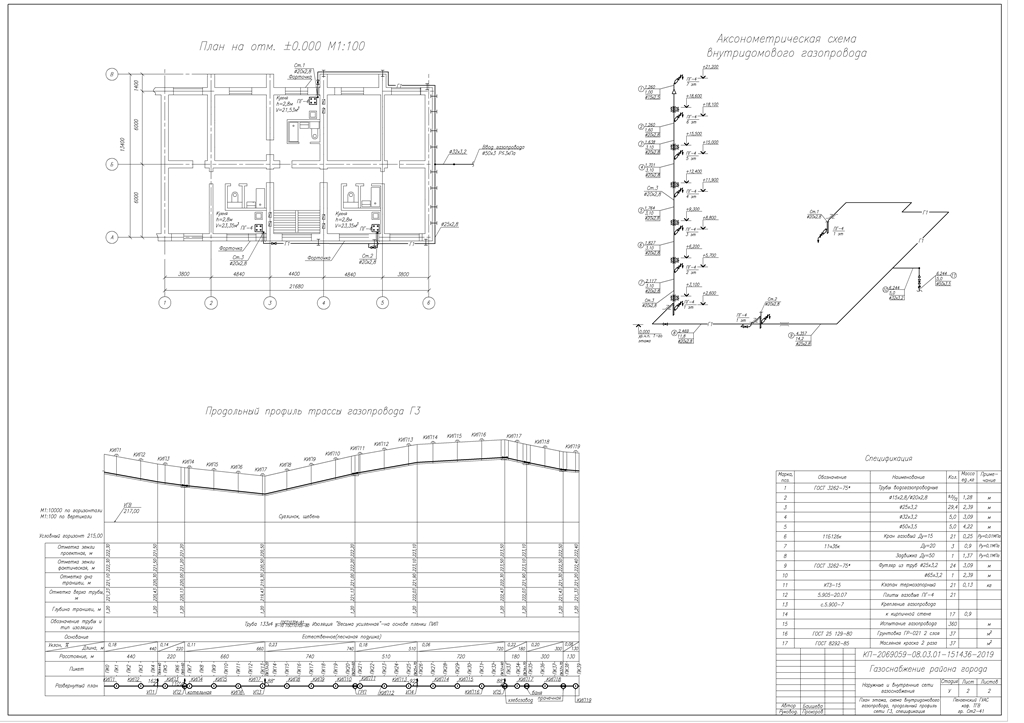
Газоснабжение района города Саранск

0
0
29
0
0
40

Пензенский государственный университет архитектуры и строительства
Кафедра "Теплогазоснабжения и вентиляции".
Курсовая работа на тему: "Газоснабжение района города".
Пенза 2015 год.

В данной работе рассматривается газоснабжение микрорайона, квартала и многоквартирного жилого дома. Определяются теплотворные характеристики топлива, рассчитываются годовые и часовые расходы газа, приводится расчет газовой горелки.

1 Исходные данные
1. Район строительства: г. Саранск.
2. Город снабжается природным газом месторождения Ямбургское.
3. Давление газа в городской распределительной сети высокого давления 0,6 МПа (изб.).
4. Охват газоснабжением:
• жилых зданий при наличии только бытовых плит: 30%;
• жилых зданий при наличии бытовых плит и ЦГВС: 60%;
• жилых зданий при наличии бытовых плит и проточных водонагревателей: 10%;
• объектов отопления и вентиляции: 100%.
5. Горелка типа ЭСД с характеристиками:
• Qт = 200 кВт;
• ΔP = 20000 Па;
• α=1,1.

 

Содержание

Введение 3
1 Исходные данные 4
2 Определение характеристик газа 5
3 Определение численности населения района города 7
4 Определение годовых расчётных расходов газа 8
5 Система и схема газоснабжения 13
6 Распределение потребителей газа по давлению 14
7 Гидравлический расчет сети низкого давления 15
8 Гидравлический расчет сети высокого давления 20
9 Гидравлический расчёт квартальной сети 24
10 Гидравлический расчёт внутридомового газопровода 26
11 Расчёт, подбор и настройка оборудования сетевого ГРП 29
12 Расчёт горелки 32
УНИРС. Пересечение газопроводом канальной теплосети 35
Список использованных источников 38


Сообщить о проблеме
Автор
user-avatar trunkov
Дата
18.03.2026
Язык
Русский
Состав
Пояснительная записка и чертежи
Софт
ArchiCAD 2010
Отзывов пока нет
Задать вопрос
Содержимое архива
  • icon-pdf 01-А1.pdf
  • icon-pdf 02-А1.pdf
  • icon-pdf ПЗ.pdf
  • icon-dwg Районы.dwg
  • icon-doc внутридом.doc
Чтобы скачать чертеж, 3D модель или проект, Вы должны зарегистрироваться и принять участие в жизни сайта. Посмотрите, как тут скачивать файлы
Отзывов пока нет
Чтобы оставить отзыв, необходимо войти
Войти с помощью:

Используя функцию входа через сторонние сервисы, Вы соглашаетесь на обработку персональных данных в соответствии с Политикой конфиденциальности