Перейти к содержимому
Войти

Водоснабжение и водоотведение жилых зданий - напор водопроводной сети – 38 м. вод. ст.

0
1
148
1
0
20

НГАСУ (Сибстрин)
Кафедра водоснабжения и водоотведения
Курсовой проект по дисциплине "Водоснабжение и водоотведение"
На тему: «Водоснабжение и водоотведение жилых зданий»
Новосибирск 2020

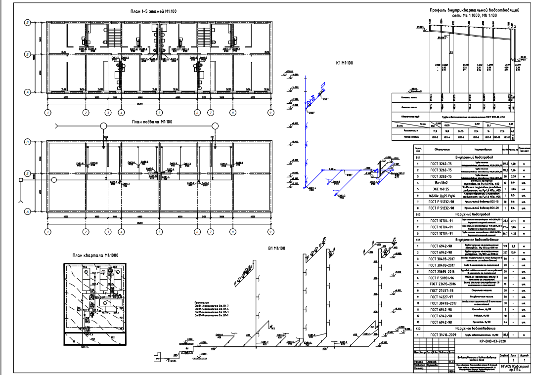
1) Генеральный план жилого микрорайона с горизонталями;
2) Номера размещения четырех пятиэтажных двухсекционных зданий
на генплане – 2, 3, 4, 6;
3) Номера варианта плана секции этажа жилого дома – 1;
4) Норма жилой площади – 13 м2;
5) Коэффициент перенаселенности квартир – 1,3;
6) Высота этажей (в чистоте) – 2,9 м;
7) Высота расположения первого этажа от земли – 1,3 м;
8) Свободный напор водопроводной сети – 38 м. вод. ст.;
9) Высота подвала (в чистоте) – 2,3 м;
10) Глубина уличного коллектора – 5,5 м;
11) Диаметр уличного коллектора – 550 мм;
12) Глубина промерзания грунта – 0,6 м;
13) Номер городского водопроводного колодца (ГВК) – 4;
14) Номер городского канализационного колодца (ГКК) – 4;
15) Вариант расположения горизонталей – 2;
16) Минимальная отметка горизонталей – 90 м;
17) Разница в отметках горизонталей – 0,1 м;

Содержание
Введение………………………………………………………………… 3
Исходные данные………………………………………………………. 4
Внутренний водопровод………………………………………………...5
Устройство вводов………………………………………………..5
Водомерный узел…………………………………………………5
Проектирование внутренней водопроводной сети………….….6
Расчет водопроводной сети……………………………...………6
Подбор водомера…………………………………………………8
Определение требуемого напора воды…………………………9
Внутренняя система водоотведения…………………………………..10
Проектирование внутренней системы водоотведения………..10
Расчетная схема водоотведения внутриканальной сети…...…11
Расчет сети водоотведения……………………………………...12
Список литературы……………………………………………………..15
Приложения……………………………………..……………………...16


Сообщить о проблеме
Автор
user-avatar DMarC
Дата
20.03.2022
Язык
Русский
Состав
Пояснительная записка, План квартала, План типового этажа, План подвала, Аксонометрические схемы, Профиль внутриквартальной водоотводящей сети, Спецификация
Софт
AutoCAD 2020 Как открыть?
Отзывов пока нет
Задать вопрос
Содержимое архива
  • icon-doc Записка.docx
  • icon-dwg Курсач.dwg
Чтобы скачать чертеж, 3D модель или проект, Вы должны зарегистрироваться и принять участие в жизни сайта. Посмотрите, как тут скачивать файлы
Отзывов пока нет
Чтобы оставить отзыв, необходимо войти
Войти с помощью:

Используя функцию входа через сторонние сервисы, Вы соглашаетесь на обработку персональных данных в соответствии с Политикой конфиденциальности