Перейти к содержимому
Войти

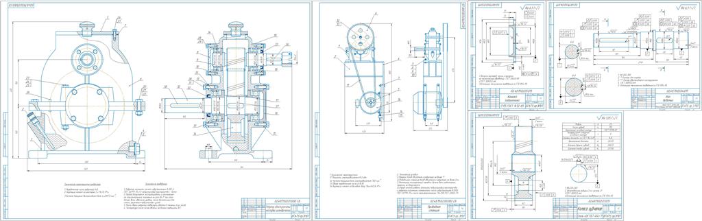
Проектирование приводной станции дискового триера очистки зерна от коротких примесей в складах зерноперерабатывающих и хлебоприемных предприятий

0
0
70
0
0
50

Белорусский технический университет, кафедра механики материалов и деталей машин, курсовой проект по дисциплине - прикладная механика, на тему Проектирование приводной станции дискового триера очистки зерна от коротких примесей в складах зерноперерабатывающих и хлебоприемных предприятий, Беларусь 2016

Исходные данные: КПД приводной станции 0,91,мощность электродвигателя при Рт=2,7кВт
Реферат
Пояснительной записки к курсовому проекту по предмету "Прикладная механика " студента 3-го курса 3 мот Васильченко Д.А. Пояснительная записка со-стоит из с. в том числе: эскизная компоновка, 27 рисунков, литературных источников 4.
Перечень ключевых слов: сборная единица, приводная станция, редуктор, передача, вал, двигатель, колесо, ремень, модуль, диаметр, шпонка, подшипник, соединение, посадка, шероховатость, точность.
Представлены:
- описание технического задания на проектирование;
- кинематический и энергетический расчет приводной станции;
- расчет механических передач, валов, зубчатых колес, шкивов, элементов
корпуса, рамы.
- выбор подшипников качения, смазочного материала, посадок, сборка и раз-борка редуктора.
Содержание
Введение……………………………………………………………………6
1.Описание конструкции привода………………………………………..7
2.Выбор электродвигателя и кинематический расчет привода………..9
3. Расчет зубчатого зацепления…………………………………………..12
4. Расчет ременной передачи……………………………………………...19
5. Ориентировочный расчет валов………………………………………24
6.Выбор и расчет соединительной муфты………………………………26
7. Назначение размеров основания корпуса, крышки редуктора…….28
8. Схема нагружения опор валов силами в зацеплениях………………31
9. Расчет валов……………………………………………………………..32
10.Расчет и выбор подшипников для валов……………………………..37
11.Шпонки призматические ..41
12.Расчет размеров зубчатого колеса……………………………………43
13.Выбор швеллера и проектирование сварной рамы…………………44
14.Смазка зацеплений и подшипников 46
15.Уточненный расчет вала……………………………………………….48
16.Выбор посадок сопряженных деталей………………………………..52
17.Сборка, регулировка и разборка редуктора………………………...53
Заключение………………………………………………………………….54
Список использованной литературы……………………………………….55


Сообщить о проблеме
Дата
10.01.2021
Язык
Русский
Состав
вал ведомый, колесо зубчатое, крышка подшипника, приводная станция, редуктор, спецификация.
Софт
КОМПАС-3D 17 Как открыть?
Отзывов пока нет
Задать вопрос
Содержимое архива
    • icon-cdw РЕДУКТОР.cdw
    • icon-doc Спецификация редуктора.doc
    • icon-cdw вал ведомый.cdw
    • icon-cdw колесо зубчатое.cdw
    • icon-cdw крышка подшипника.cdw
    • icon-cdw приводная станция.cdw
    • icon-cdw редуктор вертикальный.cdw
    • icon-doc спецификация приводной станции.doc
  • icon-doc КУРСОВОЙ.docx
  • icon-doc Реферат.docx
  • icon-doc Содердание.docx
Чтобы скачать чертеж, 3D модель или проект, Вы должны зарегистрироваться и принять участие в жизни сайта. Посмотрите, как тут скачивать файлы
Отзывов пока нет
Чтобы оставить отзыв, необходимо войти
Войти с помощью:

Используя функцию входа через сторонние сервисы, Вы соглашаетесь на обработку персональных данных в соответствии с Политикой конфиденциальности