Перейти к содержимому
Войти

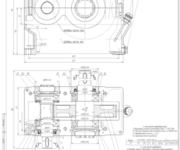
Проектирование одноступенчатого косозубого редуктора для механического привода транспортеров и технологических машин u=6.89

0
0
162
1
0
60

ПГАТК, группа № 211А, предмет "Техническая механика", тема: Проектирование одноступенчатого косозубого редуктора для механического привода транспортеров и технологических машин», 2024 год.

Учреждение образования "Пинский государственный аграрно-технический колледж имени А.Е. Клещева"

Специальность: 2-74 06 04 «Техническое обеспечение мелиоративных и водохозяйственных работ»

Исходные данные: P3 = 5.5 кВт, n3 = 140 об/мин, режим нагрузки постоянный, редуктор предназначен для длительной эксплуатации и мелкосерийного производства с нереверсивной передачей.

Содержание:
Реферат 3
Введение 5
1 Выбор электродвигателя и кинематический расчёт привода 6
2 Выбор марки материала и определение допускаемых напряжений 8
3 Расчёт передачи 9
4 Ориентировочный расчёт валов. Конструктивные размеры
зубчатой пары 16
5 Конструктивные размеры элементов корпуса и крышки редуктора 18
6 Подбор подшипников 23
7 Подбор шпонок и проверочный расчёт шпоночных соединений 32
8 Уточнённый расчёт ведущего вала 34
9 Посадки деталей и сборочных единиц редуктора 39
10 Смазка зубчатых колёс и подшипников 40
11 Охрана окружающей среды и энергосбережение 41
Заключение 42
Список использованных источников 43

Графическая часть проекта:
Лист - 1 Общий вид редуктора в масштабе 1:1 (формат А1)
Лист - 2 Рабочий чертёж зубчатого колеса (формат А3)
Лист - 3 Рабочий чертёж ведомого вала(формат А3)


Сообщить о проблеме
Автор
user-avatar MALDKOR
Дата
28.12.2024
Язык
Русский
Состав
Пояснительная записка (43 листа), Спецификация (3 листа), Общий вид редуктора, Рабочий чертёж зубчатого колеса, Рабочий чертёж ведомого вала.
Софт
КОМПАС-3D 21 Как открыть?
Отзывов пока нет
Задать вопрос
Содержимое архива
  • icon-doc Пояснительная записка.docx
  • icon-spw Спецификация редуктор.spw
  • icon-cdw Чертёж - Лист - 1 Общий вид редуктора.cdw
  • icon-cdw Чертёж - Лист - 2 Рабочий чертеж зубчатого колеса.cdw
  • icon-cdw Чертёж - Лист - 3 Рабочий чертеж ведомого вала.cdw
Чтобы скачать чертеж, 3D модель или проект, Вы должны зарегистрироваться и принять участие в жизни сайта. Посмотрите, как тут скачивать файлы
Отзывов пока нет
Чтобы оставить отзыв, необходимо войти
Войти с помощью:

Используя функцию входа через сторонние сервисы, Вы соглашаетесь на обработку персональных данных в соответствии с Политикой конфиденциальности