Перейти к содержимому
Войти

Уважаемые пользователи, временно отключили платежи через ЮКассу. Работает запасной канал. Если у кого-то потерялся платеж за 21.04 напишите в форму контактов.

Разработка конструкции токарного станка с ЧПУ С10

0
0
51
0
0
200

Сибирский государственный университет науки и технологий
имени академика М. Ф. Решетнева
Кафедра технологии машиностроения
Курсовая работа по дисциплине "Металлорежущие станки"
На тему: Разработка конструкции токарного станка с ЧПУ С10
Красноярск 2025

Исходные данные:
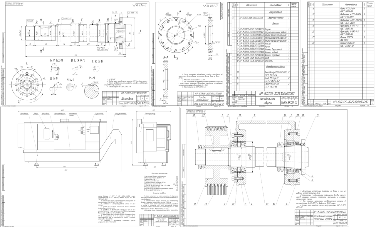
Габаритные размеры станка (ДхШхВ) - 4160х1625х2170
Максимальный диаметр обработки, мм - 555
Частота вращения шпинделя, об/мин nmax - 3050
Максимальная длина обработки, мм - 1380
Материал детали - Р6М3
Схема установки опор ШСЕ - 2Х
Дополнительное обозначение опоры- А222
Втулка между 1-ой и 2-ой опорой - 10

Перечень разрабатываемого графического материала:
Чертеж общего вида станка — формат А1
Шпиндельная сборка — формат А2
Шпиндель — формат А2
Револьверная головка — формат А3

СОДЕРЖАНИЕ

Введение…………………………………………………………………..…….5
1 Технико-экономическое обоснование……………………………………….6
1.1 Фрагментарный бизнес-план работы……………………………………6
1.2 Патентно-лицензионный обзор…………………………………..………8
1.3 Системный анализ аналогов и выбор прототипа станка………..……..18
1.4 Конструктивные проработки и описание прототипа……………..……24
1.5 Определение класса точности станка. Расчет радиального биения шпинделя……………………………………………………………………………26
2 Технологическая часть…………………………………….………………..28
2.1 Определение предельных режимов обработки………….……………..28
2.2 Выбор электродвигателя………………………………………………..32
2.3 Разработка кинематической схемы механизма главного движения….34
3 Конструкторская часть ……………………………………….…………….36
3.1 Расчет и выбор параметров шпинделя………………………………….36
3.2 Выбор подшипников, формирование посадок и определение допусков……………………………………………………………………………..37
3.3 Расчет долговечности подшипников……………………………….…..40
3.4 Расчет ресурса точности и времени безотказной работы станка…..….31
3.5 Определение эксцентриситета оси вращения шпинделя………….….41
3.6 Описание сборочного чертежа механизма главного движения (МГД), операции его сборки…………………………………………………………….….42
4 Безопасность работы……………………………………………..…………43
4.1 Безопасность эксплуатации проектной разработки………………..….43
4.2 Системы защиты……………………………………………………...…46
5 Исследовательская часть……………………………..……………………..48
Заключение…………………………………………………………………….50
Список использованных источников………………………………………....51
Приложение А. Таблица транзитивности ……………………….…………..53
Приложение Б. Номограмма допустимого остаточного удельного дисбаланса…………………………………………………………………………..54


Сообщить о проблеме
Автор
user-avatar kraken
Дата
07.12.2025
Язык
Русский
Состав
Чертеж общего вида станка (ВО А1), Шпиндельная сборка (СБ А2), Спецификация к шпиндельной сборке, Шпиндель (А2), Револьверная головка (А3, 3д), Пояснительная записка
Софт
КОМПАС-3D 23 Учебная версия Как открыть?
Отзывов пока нет
Задать вопрос
Содержимое архива
    • icon-doc PZKRv1.docx
    • icon-pdf PZKRv1.pdf
    • icon-cdw ГоловкаРевольвернаяА3.cdw
    • icon-m3d ГоловкаРевольвернаяА3.m3d
    • icon-pdf ГоловкаРевольвернаяА3.pdf
    • icon-cdw СпецификацияСБ2листА4.cdw
    • icon-pdf СпецификацияСБ2листА4.pdf
    • icon-cdw СпецификацияСборкаА4.cdw
    • icon-pdf СпецификацияСборкаА4.pdf
    • icon-cdw ЧертежСтанкаА1.cdw
    • icon-pdf ЧертежСтанкаА1.pdf
    • icon-cdw ШпиндельА2.cdw
    • icon-pdf ШпиндельА2.pdf
    • icon-cdw ШпиндельнаяСборкаА2.cdw
    • icon-pdf ШпиндельнаяСборкаА2.pdf
Чтобы скачать чертеж, 3D модель или проект, Вы должны зарегистрироваться и принять участие в жизни сайта. Посмотрите, как тут скачивать файлы
Отзывов пока нет
Чтобы оставить отзыв, необходимо войти
Войти с помощью:

Используя функцию входа через сторонние сервисы, Вы соглашаетесь на обработку персональных данных в соответствии с Политикой конфиденциальности