Перейти к содержимому
Войти

Уважаемые пользователи! В настоящий момент платежи через ЮKassa временно недоступны в связи с техническими неполадками на стороне сервиса. Функционирует резервный канал оплаты. Если у кого-то из вас не прошёл платёж за 27.04 напишите пожалуйста в контакты.

Производственное здание в г. Тула

0
3
129
2
0
80

ЮЗГУ
Кафедра "Промышленное и гражданское строительство"
Дисциплина "Проектирование гражданских и промышленных зданий и сооружений"
Тема "Проектирование промышленных зданий"
2022 год

Содержание пояснительной записки:
Реферат
Введение по объекту проектирования
1. Основные архитектурные решения по объекту проектирования
2. Основные конструктивные решения по объекту проектирования
3. Теплотехнический расчет ограждающей конструкции стены
4. Расчет конструкции основного пролета
5. Инженерное оборудование
6. Пожарная безопасность
Заключение
Список используемой литературы

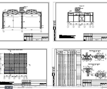
Проектом предусматривается строительство одноэтажного промышленного здания в г. Туле, а также административно-бытового комплекса. Промышленное здание представляет собой одноэтажное однопролетное здание прямоугольной формы в плане. Размеры здания в осях 54х30 м. Максимальная высота здания 25,67 м.
Класс функциональной пожарной опасности здания - Ф5.1.
Наружные стены здания выполняются из сэндвич-панелей. Кровля промышленного здания – стальная ферма с параллельными поясами с прогонами из гнутого швеллера 20П.
Здание имеет следующие объёмно-планировочные решения:
• По числу этажей – одноэтажное;
• По наличию подъёмно-транспортного оборудования – крановое;
• По конструктивным схемам покрытий – каркасное;
• По системе отопления – отапливаемое;
• По системе освещения – естественное и искусственное;
• Грузоподъёмность крана – 10т;
• Пролёт здания – 30 м;
• Шаг колонн – 12 м;
• Высота здания – 25,67 м.


Сообщить о проблеме
Автор
user-avatar user-8714997
Дата
25.02.2025
Язык
Русский
Состав
Лист 1. Фасады А-Б, Б-А Лист 1а. Фасад 1-6 Лист 1б. Фасад 6-1 Лист 1в. План на отм. 0,000 Лист 2. Схема расположения элементов покрытия в уровне нижних поясов ферм Лист 2а. Схема расположения элементов покрытия в уровне верхних поясов ферм Лист 3. Разрезы 1-1, 2-2 Лист 4. Разрез 3-3 Лист 5. Узлы Лист 6. Конструкция гор. связей Лист 7. Конструкция фермы Лист 8. Конструкция колонны Лист 9. Схема вертикальных связей Лист 10. Схема вертикальных связей Лист 11. Схема расположения фундаментов Лист 12. Конструкция ростверков Лист 13. План 1-го эт. АБК Лист 14. План 2-го эт. АБК
Софт
AutoCAD 2018 Как открыть?
Отзывов пока нет
Задать вопрос
Содержимое архива
  • icon-doc ПЗ.doc
  • icon-dwg Чертежи.dwg
Чтобы скачать чертеж, 3D модель или проект, Вы должны зарегистрироваться и принять участие в жизни сайта. Посмотрите, как тут скачивать файлы
Отзывов пока нет
Чтобы оставить отзыв, необходимо войти
Войти с помощью:

Используя функцию входа через сторонние сервисы, Вы соглашаетесь на обработку персональных данных в соответствии с Политикой конфиденциальности