Перейти к содержимому
Войти

Промышленное здание в г. Курске

0
1
154
1
1
80

ЮЗГУ
Кафедра "Промышленное и гражданское строительство"
Дисциплина "Проектирование гражданских и промышленных зданий и сооружений"
Тема "Проектирование промышленных зданий"
2022 год

Содержание.
Реферат……………………………………………………………….……………3
Введение по обьекту проектирования. 4
1. Основные архитектурные решения по объекту проектирования. 6
2. Основные конструктивные решения по объекту проектирования. 8
3. Теплотехнический расчет ограждающей конструкции стены 11
4. Расчет конструкции основного пролета 15
5. Инженерное оборудование 20
6. Пожарная безопасность 20
Заключение 21
Список использованной литературы. 22

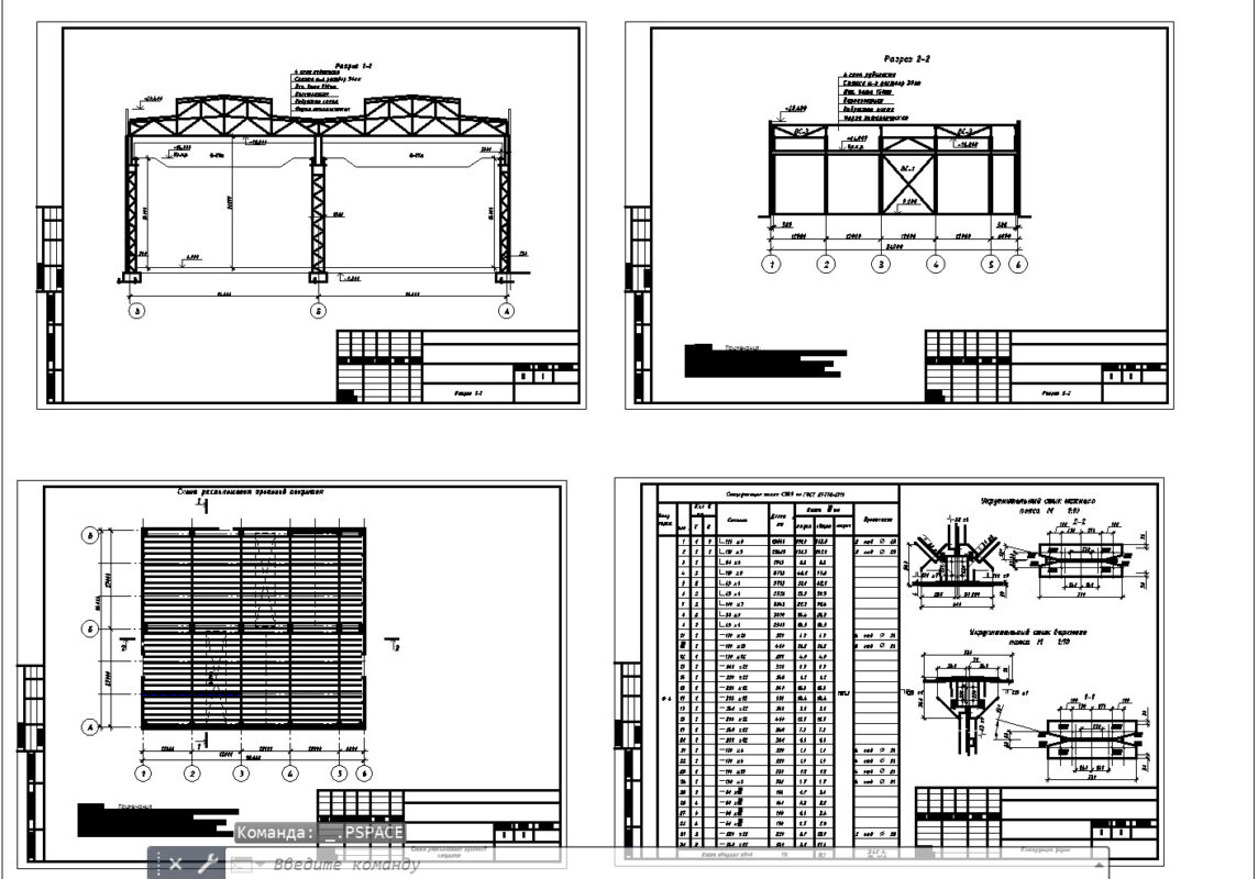
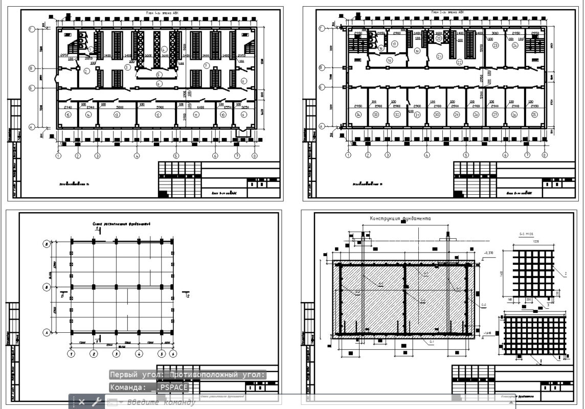
Проектом предусматривается строительство одноэтажного промышленного здания в г. Курске, а также административно-бытового комплекса. Промышленное здание представляет собой одноэтажное однопролетное здание прямоугольной формы в плане. Размеры здания в осях 54х27 м. Максимальная высота здания 15,26 м.
Класс функциональной пожарной опасности здания - Ф5.1.
Наружные стены здания выполняются из сэндвич-панелей. Кровля промышленного здания – стальная ферма с параллельными поясами с прогонами из гнутого швеллера 30 П.
Здание имеет следующие объёмно-планировочные решения:
• По числу этажей – одноэтажное;
• По наличию подъёмно-транспортного оборудования – крановое;
• По конструктивным схемам покрытий – каркасное;
• По системе отопления – отапливаемое;
• По системе освещения – естественное и искусственное;
• Грузоподъёмность крана – 10т;
• Пролёт здания – 27 м;
• Шаг колонн – 12 м;
• Высота здания – 20,40 м.


Сообщить о проблеме
Автор
user-avatar user-8714997
Дата
25.02.2025
Язык
Русский
Состав
Лист 1. Фасады Лист 2. Фасады Лист 3. План на отм. 0,000 Лист 4. Схема расположения элементов в уровне нижних поясов ферм Лист 5. Схема расположения прогонов покрытия Лист 6. Разрез 1-1 Лист 7. Разрез 2-2 Лист 8. Конструкция фермы Лист 9. Конструкция фермы Лист 10. Схема расположения фундаментов Лист 11. Конструкция фундамента Лист 12. План 1-го этажа. АБК Лист 13. План 2-го этажа. АБК Лист 14. Экспликация помещений
Софт
AutoCAD 2018 Как открыть?
Отзывов пока нет
Задать вопрос
Содержимое архива
  • icon-dwg Графическая часть.dwg
  • icon-doc Пояснительная записка.doc
Чтобы скачать чертеж, 3D модель или проект, Вы должны зарегистрироваться и принять участие в жизни сайта. Посмотрите, как тут скачивать файлы
Отзывов пока нет
Чтобы оставить отзыв, необходимо войти
Войти с помощью:

Используя функцию входа через сторонние сервисы, Вы соглашаетесь на обработку персональных данных в соответствии с Политикой конфиденциальности