Перейти к содержимому
Войти

Проект и организация технической эксплуатации электрооборудования и схема управления платформенного подъемника автомобилей ПЛ10Н

0
0
24
0
0
250

Министерство образования Рязанской области
Областное государственное бюджетное
профессиональное образовательное учреждение
«РЯЗАНСКИЙ КОЛЛЕДЖ ЭЛЕКТРОНИКИ»

ДИПЛОМНЫЙ ПРОЕКТ

Специальность: 13.02.11 «Техническая эксплуатация и обслуживание электрического и электромеханического оборудования (по отраслям)».
Тема: Проект и организация технической эксплуатации электрооборудования и схема управления платформенного подъемника автомобилей ПЛ10Н

Целью данного проекта (работы) является разработать проект и организовать техническую эксплуатацию электрооборудования, а также изучить схему управления платформенным подъёмником автомобилей ПЛ10Н, обеспечивающую надёжную и безопасную работу устройства.
Для достижения поставленной цели решаются следующие задачи:
Анализ конструктивных особенностей и технических характеристик подъемника ПЛ-10Н.
Изучение электрической схемы управления, обеспечивающей синхронизацию работы стоек и защиту двигателей.
Расчет параметров пускозащитной аппаратуры и выбор современных комплектующих.
Обоснование мер по охране труда и электробезопасности при работе с грузоподъемными механизмами.
Объектом исследования является электрооборудование и система управления четырех стоечного платформенного подъемника ПЛ-10Н.
Предмет исследования – процессы проектирования, эксплуатации и технического обслуживания электрооборудования и системы управления подъёмника ПЛ10Н.
Платформенный подъемник модели ПЛ10Н предназначен для вертикального подъема автомобилей, посредством электрического привода.
Наименование Параметры Тип
Электродвигатель главного движения Тип АИР80В4
Мощность, кВт 1,5
Число об/мин 1500 (1440)

СОДЕРЖАНИЕ
ВВЕДЕНИЕ 4
2 ТЕХНИЧЕСКАЯ ЧАСТЬ 6
2.1 Краткое описание, назначение, устройство и принцип работы оборудования 6
2.2 Техническая и эксплуатационная характеристика оборудования и двигателя 7
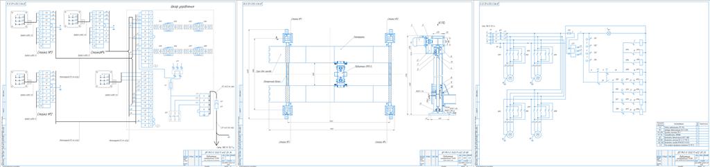
2.3 Описание работы принципиальной электрической схемы 10
2.4 Описание монтажной схемы. Шкаф управления 12
3 РАСЧЕТНАЯ ЧАСТЬ 16
3.1 Расчет и выбор автоматического выключателя 16
3.2 Выбор плавкого предохранителя 22
3.3 Выбор магнитного пускателя и теплового реле 25
3.4 Расчёт силовых электропроводок 31
4 ОРГАНИЗАЦИОННО-ТЕХНОЛОГИЧЕСКАЯ ЧАСТЬ 37
4.1 Техника безопасности при обслуживании электрооборудования 37
4.2 Заземления и молниезащита оборудования 42
4.3 Эксплуатация электрического оборудования 44
4.4 Вывод оборудования из эксплуатации 47
4.5 Эксплуатационные ограничения. Подготовка к работе оборудования 48
4.6 Эксплуатация и ремонт электрических машин и аппаратов 49
4.7 Эксплуатация и ремонт внутренней проводки 52
ЗАКЛЮЧЕНИЕ 54
СПИСОК ИСПОЛЬЗОВАННЫХ ИСТОЧНИКОВ 55
ПРИЛОЖЕНИЕ А 57
ПРИЛОЖЕНИЕ Б 58
ПРИЛОЖЕНИЕ В 59
ПРИЛОЖЕНИЕ Г 60


Сообщить о проблеме
Дата
15.04.2026
Язык
Русский
Состав
Подъемник ПЛ10Н (ВО), монтажная схема (Э4), Схема электрическая принципиальная (Э3), спецификация (ВС)., ПЗ
Софт
КОМПАС-3D 23 Как открыть?
Отзывов пока нет
Задать вопрос
Содержимое архива
    • icon-cdw Montazhnaya_skhema.cdw
    • icon-png Montazhnaya_skhema.png
    • icon-doc Диплом новая версия.docx
    • icon-doc Задание ДП.docx
    • icon-pdf Набор для сайта ПЛ10Н_.pdf
    • icon-cdw Спецификация.cdw
    • icon-png Спецификация.png
    • icon-cdw Чертеж общего вида.cdw
    • icon-cdw Чертеж общего вида — ПЛ10Н.cdw
    • icon-png Чертеж общего вида — ПЛ10Н.png
    • icon-cdw Эл. схема.cdw
    • icon-png Эл. схема.png
Чтобы скачать чертеж, 3D модель или проект, Вы должны зарегистрироваться и принять участие в жизни сайта. Посмотрите, как тут скачивать файлы
Отзывов пока нет
Чтобы оставить отзыв, необходимо войти
Войти с помощью:

Используя функцию входа через сторонние сервисы, Вы соглашаетесь на обработку персональных данных в соответствии с Политикой конфиденциальности